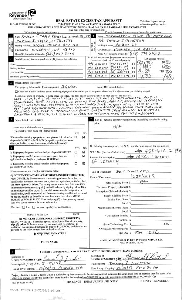
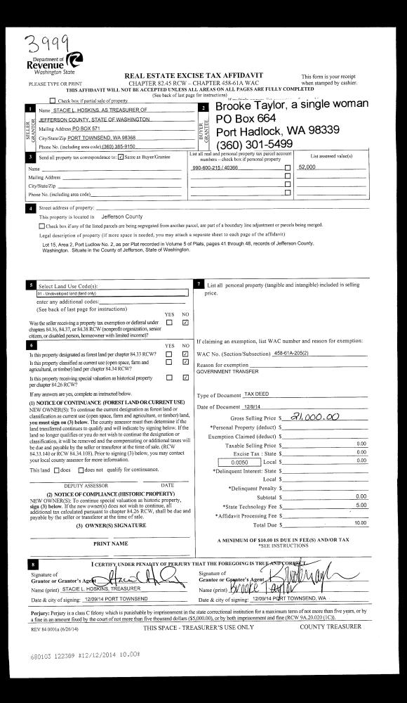
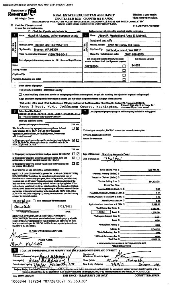
Property
Account |
| Property ID: | 43321 | Abbreviated Legal Description: | TIMBERTON VILLAGE PHASE I LOT 18 SUBJ/5' BLA SUBJ/EASE |
| Parcel # / Geo ID: | 998500018 | Agent Code: | |
| Type: | Real | | |
| Tax Area: | 0213 - 1-49F1E1H2L1 | Land Use Code | 11 |
| Open Space: | N | DFL | N |
| Historic Property: | N | Remodel Property: | N |
| Multi-Family Redevelopment: | N | | |
| Township: | 28N | Section: | 17 |
| Range: | 1E |
Location |
| Address: | 45 LEIGHBROOK LN PORT LUDLOW, WA 98365 | Mapsco: | 136/018 |
| Neighborhood: | S17T28R1E IN MPR; LUDLOW PT#2-4 & TIMBERTON VIL;RV PK;OSPREY | Map ID: | |
| Neighborhood CD: | 3340 |
Owner |
| Name: | ROBERT KING | Owner ID: | 96975 |
| Mailing Address: | 2162 SAWTOOTH MOUNTAIN DR HENDERSON, NV 89044-0107 | % Ownership: | 100.0000000000% |
| | | Exemptions: | |
Pay Tax Due
There is currently No Amount Due on this property.
Taxes and Assessment Details
Property Tax Information as of
10/24/2025
Click on "Statement Details" to expand or collapse a tax statement.
* Please enter a valid date ** Please enter a valid date *
Statement Details |
| | TOTAL: | $0.00 | $0.00 | $0.00 | $0.00 | $0.00 | $0.00 |
|
| | $0.00 | $0.00 | $0.00 | $0.00 | $0.00 | $0.00 |
Values
| (+) Improvement Homesite Value: | + | $0 | |
| (+) Improvement Non-Homesite Value: | + | $351,685 | |
| (+) Land Homesite Value: | + | $0 | |
| (+) Land Non-Homesite Value: | + | $85,000 | |
| (+) Curr Use (HS): | + | $0 | $0 |
| (+) Curr Use (NHS): | + | $0 | $0 |
| | | -------------------------- | |
| (=) Market Value: | = | $436,685 | |
| (–) Productivity Loss: | – | $0 | |
| | | -------------------------- | |
| (=) Subtotal: | = | $436,685 | |
| (+) Senior Appraised Value: | + | $0 | |
| (+) Non-Senior Appraised Value: | + | $436,685 | |
| | | -------------------------- | |
| (=) Total Appraised Value: | = | $436,685 | |
| (–) Senior Exemption Loss: | – | $0 | |
| (–) Exemption Loss: | – | $0 | |
| | | -------------------------- | |
| (=) Taxable Value: | = | $436,685 | |
Taxing Jurisdiction
| Owner: | ROBERT KING | | |
| % Ownership: | 100.0000000000% | | |
| Total Value: | N/A | | |
| Tax Area: | 0213 - 1-49F1E1H2L1 |
| CE | COUNTY CURRENT EXPENSE | N/A | N/A | N/A | N/A | | |
| CNTYDD | DEVELOPMENTAL DISABILITIES | N/A | N/A | N/A | N/A | | |
| CNTYVET | VETERANS RELIEF | N/A | N/A | N/A | N/A | | |
| MENTAL | MENTAL HEALTH | N/A | N/A | N/A | N/A | | |
| ROADS | COUNTY ROADS | N/A | N/A | N/A | N/A | | |
| ROADSCU | COUNTY ROADS TO CUR EXP | N/A | N/A | N/A | N/A | | |
| HOSP2CASH | HOSP DIST #2 GENERAL | N/A | N/A | N/A | N/A | | |
| SCH49CP | SCHOOL DIST #49 CAP PROJ | N/A | N/A | N/A | N/A | | |
| SCH49MO | SCHOOL DIST #49 EP & O | N/A | N/A | N/A | N/A | | |
| CONSERVE | CONSERVATION FUTURES | N/A | N/A | N/A | N/A | | |
| EMS1 | FIRE DIST #1 EMS | N/A | N/A | N/A | N/A | | |
| FD1 | FIRE DIST #1 GENERAL | N/A | N/A | N/A | N/A | | |
| LIB1 | LIBRARY DIST #1 GENERAL | N/A | N/A | N/A | N/A | | |
| PORTPT | PORT OF PT GENERAL | N/A | N/A | N/A | N/A | | |
| PORTPTIDD | PORT OF PT IDD 2019 | N/A | N/A | N/A | N/A | | |
| PUD1 | PUD #1 GENERAL | N/A | N/A | N/A | N/A | | |
| STATE | STATE SCHOOL PART 1 | N/A | N/A | N/A | N/A | | |
| STATE2 | STATE SCHOOL PART 2 | N/A | N/A | N/A | N/A | | |
| | Total Tax Rate: | N/A | | | | | |
| | | | | Taxes w/Current Exemptions: | N/A | | |
| | | | | Taxes w/o Exemptions: | N/A | | |
Improvement / Building
| Improvement #1: | Residential Bldg | State Code: | 11 | 1520.0 sqft | Value: | $351,685 |
| Bathrooms (#): | 2 (FULL) | Bathrooms (#): | 1 (HALF) | | Bedrooms (#): | 2 | Exterior Wall: | SI/ST | | Fireplace: | SIN 1-GOOD | Floor Construction: | FRAME | | Foundation: | CONPR | Heating/Cooling: | HPUMP | | Inside Verify: | YES | Roof Cover: | COMP |
|
| | Type | Description | Class CD | Sub Class CD | Year Built | Area |
| | MA | Main Area | 4+ | 1S | 1999 | 1520.0 |
| | HWPOR | House Wood Porch | 4 | 1S | 1999 | 160.0 |
| | HCPOR | House Concrete Porch | 4 | 1S | 1999 | 168.0 |
| | HDECK | House Deck | 4 | 1S | 1999 | 240.0 |
| | GATT | House Attached Garage | 4 | 1S | 1999 | 483.0 |
| | CONCD | Concrete Drive | 4 | 1S | 1999 | 800.0 |
Sketch
| No sketches available for this property. |
Property Image
Land
| 1 | 3340-1187L | No/Terr View Lots Timberton Village | 0.0000 | 0.00 | 0.00 | 0.00 | 1.00 | $85,000 | $0 |
Roll Value History
| 2025 | N/A | N/A | N/A | N/A | N/A |
| 2024 | $351,685 | $85,000 | $0 | $436,685 | $436,685 |
| 2023 | $351,685 | $80,000 | $0 | $431,685 | $431,685 |
| 2022 | $351,685 | $75,000 | $0 | $426,685 | $426,685 |
| 2021 | $290,129 | $58,500 | $0 | $348,629 | $348,629 |
Deed and Sales History
| 1 | 03/23/2017 | SWD | Statutory Warranty Deed | KELLY D KENNEDY | ROBERT KING | | | $279,500.00 | 127396 | |
| 2 | 04/03/2015 | PRD | Personal Representatives Deed | | | | | | 122959 | |
| 3 | 11/06/1999 | SWD | Statutory Warranty Deed | OLYMPIC REAL ESTATE DEVEL | KENNEDY, KELLY/MOLLIE | 0 | 0 | $180,846.00 | 88382 | 0 |
| 4 | 09/30/1998 | BLA | Boundary Line Adjustment | POPE RESOURCES | POPE RESOURCES | 0 | 0 | $0.00 | 86291 | 0 |
Payout Agreement
| No payout information available.. |