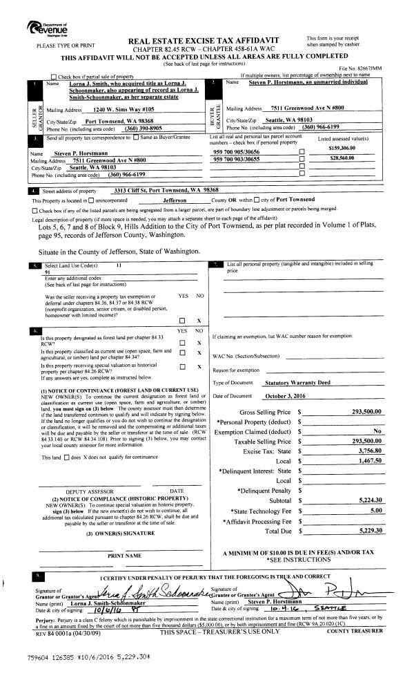
Property
Account |
| Property ID: | 43330 | Abbreviated Legal Description: | TIMBERTON VILLAGE PHASE I LOT 27 SUBJ/EASE |
| Parcel # / Geo ID: | 998500027 | Agent Code: | |
| Type: | Real | | |
| Tax Area: | 0213 - 1-49F1E1H2L1 | Land Use Code | 11 |
| Open Space: | N | DFL | N |
| Historic Property: | N | Remodel Property: | N |
| Multi-Family Redevelopment: | N | | |
| Township: | 28N | Section: | 17 |
| Range: | 1E |
Location |
| Address: | 104 HERITAGE LN PORT LUDLOW, WA 98365 | Mapsco: | 136/027 |
| Neighborhood: | S17T28R1E IN MPR; LUDLOW PT#2-4 & TIMBERTON VIL;RV PK;OSPREY | Map ID: | |
| Neighborhood CD: | 3340 |
Owner |
| Name: | ROGER & DEBORAH BRYAN | Owner ID: | 37641 |
| Mailing Address: | 104 HERITAGE LANE PORT LUDLOW, WA 98365 | % Ownership: | 100.0000000000% |
| | | Exemptions: | |
Pay Tax Due
There is currently No Amount Due on this property.
Taxes and Assessment Details
Property Tax Information as of
10/24/2025
Click on "Statement Details" to expand or collapse a tax statement.
* Please enter a valid date ** Please enter a valid date *
Statement Details |
| | TOTAL: | $0.00 | $0.00 | $0.00 | $0.00 | $0.00 | $0.00 |
|
| | $0.00 | $0.00 | $0.00 | $0.00 | $0.00 | $0.00 |
Values
| (+) Improvement Homesite Value: | + | $373,988 | |
| (+) Improvement Non-Homesite Value: | + | $0 | |
| (+) Land Homesite Value: | + | $115,500 | |
| (+) Land Non-Homesite Value: | + | $0 | |
| (+) Curr Use (HS): | + | $0 | $0 |
| (+) Curr Use (NHS): | + | $0 | $0 |
| | | -------------------------- | |
| (=) Market Value: | = | $489,488 | |
| (–) Productivity Loss: | – | $0 | |
| | | -------------------------- | |
| (=) Subtotal: | = | $489,488 | |
| (+) Senior Appraised Value: | + | $0 | |
| (+) Non-Senior Appraised Value: | + | $489,488 | |
| | | -------------------------- | |
| (=) Total Appraised Value: | = | $489,488 | |
| (–) Senior Exemption Loss: | – | $0 | |
| (–) Exemption Loss: | – | $0 | |
| | | -------------------------- | |
| (=) Taxable Value: | = | $489,488 | |
Taxing Jurisdiction
| Owner: | ROGER & DEBORAH BRYAN | | |
| % Ownership: | 100.0000000000% | | |
| Total Value: | N/A | | |
| Tax Area: | 0213 - 1-49F1E1H2L1 |
| CE | COUNTY CURRENT EXPENSE | N/A | N/A | N/A | N/A | | |
| CNTYDD | DEVELOPMENTAL DISABILITIES | N/A | N/A | N/A | N/A | | |
| CNTYVET | VETERANS RELIEF | N/A | N/A | N/A | N/A | | |
| MENTAL | MENTAL HEALTH | N/A | N/A | N/A | N/A | | |
| ROADS | COUNTY ROADS | N/A | N/A | N/A | N/A | | |
| ROADSCU | COUNTY ROADS TO CUR EXP | N/A | N/A | N/A | N/A | | |
| HOSP2CASH | HOSP DIST #2 GENERAL | N/A | N/A | N/A | N/A | | |
| SCH49CP | SCHOOL DIST #49 CAP PROJ | N/A | N/A | N/A | N/A | | |
| SCH49MO | SCHOOL DIST #49 EP & O | N/A | N/A | N/A | N/A | | |
| CONSERVE | CONSERVATION FUTURES | N/A | N/A | N/A | N/A | | |
| EMS1 | FIRE DIST #1 EMS | N/A | N/A | N/A | N/A | | |
| FD1 | FIRE DIST #1 GENERAL | N/A | N/A | N/A | N/A | | |
| LIB1 | LIBRARY DIST #1 GENERAL | N/A | N/A | N/A | N/A | | |
| PORTPT | PORT OF PT GENERAL | N/A | N/A | N/A | N/A | | |
| PORTPTIDD | PORT OF PT IDD 2019 | N/A | N/A | N/A | N/A | | |
| PUD1 | PUD #1 GENERAL | N/A | N/A | N/A | N/A | | |
| STATE | STATE SCHOOL PART 1 | N/A | N/A | N/A | N/A | | |
| STATE2 | STATE SCHOOL PART 2 | N/A | N/A | N/A | N/A | | |
| | Total Tax Rate: | N/A | | | | | |
| | | | | Taxes w/Current Exemptions: | N/A | | |
| | | | | Taxes w/o Exemptions: | N/A | | |
Improvement / Building
| Improvement #1: | Residential Bldg | State Code: | 11 | 1572.0 sqft | Value: | $373,988 |
| Bathrooms (#): | 3 (FULL) | Bedrooms (#): | 3 | | Exterior Wall: | SI/ST | Fireplace: | SIN 1-GOOD | | Floor Construction: | FRAME | Foundation: | CONPR | | Heating/Cooling: | ELBB | Inside Verify: | YES | | Roof Cover: | COMP |   |   |
|
| | Type | Description | Class CD | Sub Class CD | Year Built | Area |
| | MA | Main Area | 4+ | 15SF | 1996 | 1280.0 |
| | MA2 | Second Floor Main Area | 4+ | 15SF | 1996 | 292.0 |
| | PATIO | House Patio | 4 | 15SF | 1996 | 144.0 |
| | HCPOR | House Concrete Porch | 4 | 15SF | 1996 | 70.0 |
| | HDECK | House Deck | 4 | 15SF | 1996 | 550.0 |
| | GATT | House Attached Garage | 4 | 15SF | 1996 | 338.0 |
| | CONCD | Concrete Drive | 4 | 15SF | 1996 | 360.0 |
Sketch
| No sketches available for this property. |
Property Image
Land
| 1 | 3340-1177L | Terr/Filtered View Lots Timberton Village | 0.0000 | 0.00 | 0.00 | 0.00 | 1.00 | $115,500 | $0 |
Roll Value History
| 2025 | N/A | N/A | N/A | N/A | N/A |
| 2024 | $373,988 | $115,500 | $0 | $489,488 | $489,488 |
| 2023 | $373,988 | $110,500 | $0 | $484,488 | $484,488 |
| 2022 | $373,988 | $99,750 | $0 | $473,738 | $473,738 |
| 2021 | $238,025 | $91,000 | $0 | $329,025 | $329,025 |
Deed and Sales History
| 1 | 05/23/2017 | SWD | Statutory Warranty Deed | MICHAEL L KEEFE | ROGER & DEBORAH BRYAN | | | $313,000.00 | 127782 | |
| 2 | 07/22/2005 | SWD | Statutory Warranty Deed | KORNISH, GARY C & DINAH J | KEEFE, MICHAEL L & THELMA I | 0 | 0 | $315,000.00 | 104359 | 0 |
| 3 | 10/03/2002 | SWD | Statutory Warranty Deed | HEGGEN, PHYLLIS | KORNISH, GARY C/DINAH J | 0 | 0 | $175,000.00 | 95763 | 0 |
| 4 | 08/25/1999 | SWD | Statutory Warranty Deed | KUCERA FAMILY TRUST | HEGGEN, PHYLLIS | 0 | 0 | $149,000.00 | 87753 | 0 |
| 5 | 08/28/1997 | QCD | Quit Claim Deed | BENSON, DEBRA J | BENSON, DAVID E | 0 | 0 | $0.00 | 82684 | 0 |
| 6 | 08/20/1997 | QCD | Quit Claim Deed | FORELL, DONNA | FORELL, M JACK | 0 | 0 | $0.00 | 82683 | 0 |
| 7 | 08/07/1997 | WD | Warranty Deed | RAK DEVELOPMENT | KUCERA FAMILY TRUST | 0 | 0 | $0.00 | 82540 | 0 |
Payout Agreement
| No payout information available.. |