Property
Account |
| Property ID: | 43357 | Abbreviated Legal Description: | TIMBERTON VILLAGE PHASE II LOT 54 SUBJ TO EASE |
| Parcel # / Geo ID: | 998500054 | Agent Code: | |
| Type: | Real | | |
| Tax Area: | 0213 - 1-49F1E1H2L1 | Land Use Code | 11 |
| Open Space: | N | DFL | N |
| Historic Property: | N | Remodel Property: | N |
| Multi-Family Redevelopment: | N | | |
| Township: | 28N | Section: | 17 |
| Range: | 1E |
Location |
| Address: | 64 TIMBER RIDGE DR PORT LUDLOW, WA 98365 | Mapsco: | 137/027 |
| Neighborhood: | S17T28R1E IN MPR; LUDLOW PT#2-4 & TIMBERTON VIL;RV PK;OSPREY | Map ID: | |
| Neighborhood CD: | 3340 |
Owner |
| Name: | NORFINN TRUST | Owner ID: | 102386 |
| Mailing Address: | BRIAN M BELMONT TRUSTEE DANA L NIEMINEN TRUSTEE 64 TIMBER RIDGE DR PORT LUDLOW, WA 98365-9734 | % Ownership: | 100.0000000000% |
| | | Exemptions: | |
Pay Tax Due
There is currently No Amount Due on this property.
Taxes and Assessment Details
Property Tax Information as of
10/24/2025
Click on "Statement Details" to expand or collapse a tax statement.
* Please enter a valid date ** Please enter a valid date *
Statement Details |
| | TOTAL: | $0.00 | $0.00 | $0.00 | $0.00 | $0.00 | $0.00 |
|
| | $0.00 | $0.00 | $0.00 | $0.00 | $0.00 | $0.00 |
Values
| (+) Improvement Homesite Value: | + | $0 | |
| (+) Improvement Non-Homesite Value: | + | $448,237 | |
| (+) Land Homesite Value: | + | $0 | |
| (+) Land Non-Homesite Value: | + | $105,000 | |
| (+) Curr Use (HS): | + | $0 | $0 |
| (+) Curr Use (NHS): | + | $0 | $0 |
| | | -------------------------- | |
| (=) Market Value: | = | $553,237 | |
| (–) Productivity Loss: | – | $0 | |
| | | -------------------------- | |
| (=) Subtotal: | = | $553,237 | |
| (+) Senior Appraised Value: | + | $0 | |
| (+) Non-Senior Appraised Value: | + | $553,237 | |
| | | -------------------------- | |
| (=) Total Appraised Value: | = | $553,237 | |
| (–) Senior Exemption Loss: | – | $0 | |
| (–) Exemption Loss: | – | $0 | |
| | | -------------------------- | |
| (=) Taxable Value: | = | $553,237 | |
Taxing Jurisdiction
| Owner: | NORFINN TRUST | | |
| % Ownership: | 100.0000000000% | | |
| Total Value: | N/A | | |
| Tax Area: | 0213 - 1-49F1E1H2L1 |
| CE | COUNTY CURRENT EXPENSE | N/A | N/A | N/A | N/A | | |
| CNTYDD | DEVELOPMENTAL DISABILITIES | N/A | N/A | N/A | N/A | | |
| CNTYVET | VETERANS RELIEF | N/A | N/A | N/A | N/A | | |
| MENTAL | MENTAL HEALTH | N/A | N/A | N/A | N/A | | |
| ROADS | COUNTY ROADS | N/A | N/A | N/A | N/A | | |
| ROADSCU | COUNTY ROADS TO CUR EXP | N/A | N/A | N/A | N/A | | |
| HOSP2CASH | HOSP DIST #2 GENERAL | N/A | N/A | N/A | N/A | | |
| SCH49CP | SCHOOL DIST #49 CAP PROJ | N/A | N/A | N/A | N/A | | |
| SCH49MO | SCHOOL DIST #49 EP & O | N/A | N/A | N/A | N/A | | |
| CONSERVE | CONSERVATION FUTURES | N/A | N/A | N/A | N/A | | |
| EMS1 | FIRE DIST #1 EMS | N/A | N/A | N/A | N/A | | |
| FD1 | FIRE DIST #1 GENERAL | N/A | N/A | N/A | N/A | | |
| LIB1 | LIBRARY DIST #1 GENERAL | N/A | N/A | N/A | N/A | | |
| PORTPT | PORT OF PT GENERAL | N/A | N/A | N/A | N/A | | |
| PORTPTIDD | PORT OF PT IDD 2019 | N/A | N/A | N/A | N/A | | |
| PUD1 | PUD #1 GENERAL | N/A | N/A | N/A | N/A | | |
| STATE | STATE SCHOOL PART 1 | N/A | N/A | N/A | N/A | | |
| STATE2 | STATE SCHOOL PART 2 | N/A | N/A | N/A | N/A | | |
| | Total Tax Rate: | N/A | | | | | |
| | | | | Taxes w/Current Exemptions: | N/A | | |
| | | | | Taxes w/o Exemptions: | N/A | | |
Improvement / Building
| Improvement #1: | Residential Bldg | State Code: | 11 | 2041.0 sqft | Value: | $448,237 |
| Bathrooms (#): | 3 (FULL) | Bathrooms (#): | 1 (HALF) | | Bedrooms (#): | 3 | Exterior Wall: | SI/ST | | Fireplace: | SIN 1-GOOD | Floor Construction: | FRAME | | Foundation: | CONPR | Heating/Cooling: | F/A | | Inside Verify: | NO | Roof Cover: | COMP |
|
| | Type | Description | Class CD | Sub Class CD | Year Built | Area |
| | MA | Main Area | 4+ | 15SF | 2004 | 1563.0 |
| | MA2 | Second Floor Main Area | 4+ | 15SF | 2004 | 478.0 |
| | HCPOR | House Concrete Porch | 4 | 15SF | 2004 | 94.0 |
| | HDECK | House Deck | 4 | 15SF | 2004 | 288.0 |
| | GATT | House Attached Garage | 4 | 15SF | 2004 | 544.0 |
| | CONCD | Concrete Drive | 4 | 15SF | 2004 | 480.0 |
Sketch
| No sketches available for this property. |
Property Image
Land
| 1 | 3340-1177L | Terr/Filtered View Lots Timberton Village | 0.0000 | 0.00 | 0.00 | 0.00 | 1.00 | $105,000 | $0 |
Roll Value History
| 2025 | N/A | N/A | N/A | N/A | N/A |
| 2024 | $448,237 | $105,000 | $0 | $553,237 | $553,237 |
| 2023 | $448,237 | $100,000 | $0 | $548,237 | $548,237 |
| 2022 | $448,237 | $90,000 | $0 | $538,237 | $538,237 |
| 2021 | $333,005 | $71,500 | $0 | $404,505 | $404,505 |
Deed and Sales History
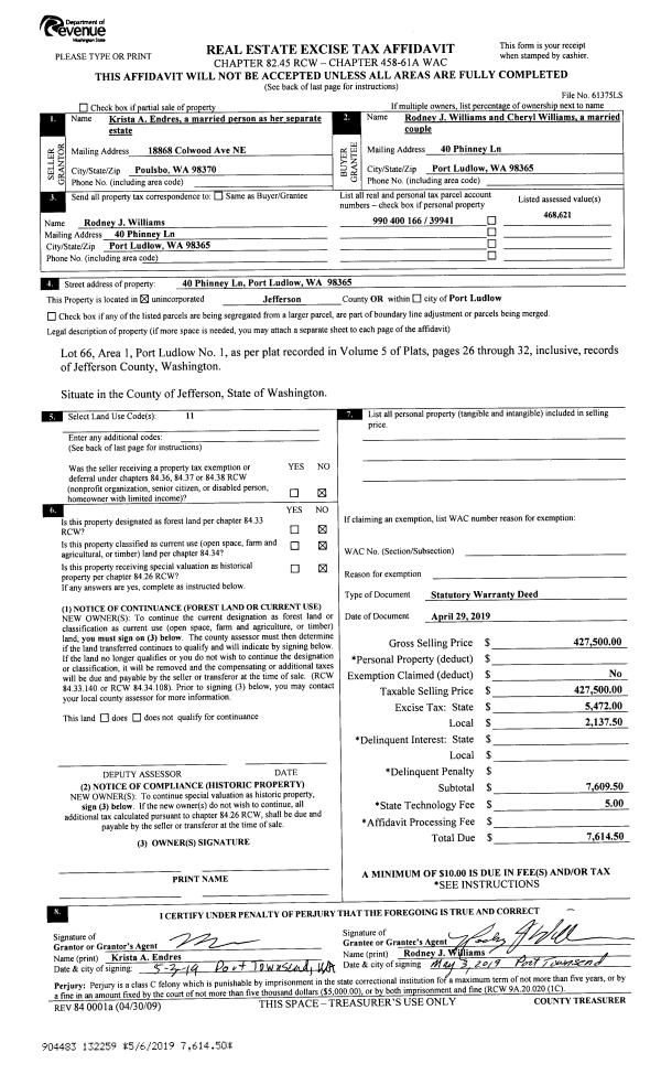
| 1 | 01/08/2021 | SWD | Statutory Warranty Deed | BRIAN M BELMONT & DANA L NIEMINEN | NORFINN TRUST | | | | 135976 | |
| 2 | 12/10/2020 | QCD | Quit Claim Deed | NORFINN TRUST | BRIAN M BELMONT & DANA L NIEMINEN | | | | 135780 | |
| 3 | 10/21/2019 | LOP | Lack of Probate | BRIAN BELMONT | NORFINN TRUST | | | | 133975 | |
| 4 | 05/10/2010 | SWD | Statutory Warranty Deed | PORTZ, HARVEY M/JENNIFER | BELMONT, BRIAN/PATRICIA L | | | $336,000.00 | 114390 | 0 |
| 5 | 12/14/2004 | SWD | Statutory Warranty Deed | PORT LUDLOW ASSOCIATES LL | PORTZ, HARVEY M/JENNIFER J | 0 | 0 | $265,950.00 | 102373 | 0 |
Payout Agreement
| No payout information available.. |