Property
Account |
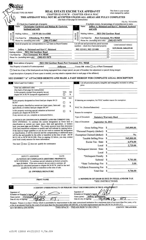
| Property ID: | 43366 | Abbreviated Legal Description: | TIMBERTON VILLAGE PHASE III LOT 63 SUBJ TO EASE |
| Parcel # / Geo ID: | 998500063 | Agent Code: | |
| Type: | Real | | |
| Tax Area: | 0213 - 1-49F1E1H2L1 | Land Use Code | 11 |
| Open Space: | N | DFL | N |
| Historic Property: | N | Remodel Property: | N |
| Multi-Family Redevelopment: | N | | |
| Township: | 28N | Section: | 17 |
| Range: | 1E |
Location |
| Address: | 101 TIMBER HEIGHTS DR PORT LUDLOW, WA 98365 | Mapsco: | 138/004 |
| Neighborhood: | S17T28R1E IN MPR; LUDLOW PT#2-4 & TIMBERTON VIL;RV PK;OSPREY | Map ID: | |
| Neighborhood CD: | 3340 |
Owner |
| Name: | JOHN M & BARBARA J SWEET | Owner ID: | 95176 |
| Mailing Address: | 101 TIMBER HEIGHTS DR PORT LUDLOW, WA 98365-8247 | % Ownership: | 100.0000000000% |
| | | Exemptions: | |
Pay Tax Due
There is currently No Amount Due on this property.
Taxes and Assessment Details
Property Tax Information as of
10/24/2025
Click on "Statement Details" to expand or collapse a tax statement.
* Please enter a valid date ** Please enter a valid date *
Statement Details |
| | TOTAL: | $0.00 | $0.00 | $0.00 | $0.00 | $0.00 | $0.00 |
|
| | $0.00 | $0.00 | $0.00 | $0.00 | $0.00 | $0.00 |
Values
| (+) Improvement Homesite Value: | + | $458,621 | |
| (+) Improvement Non-Homesite Value: | + | $0 | |
| (+) Land Homesite Value: | + | $215,000 | |
| (+) Land Non-Homesite Value: | + | $0 | |
| (+) Curr Use (HS): | + | $0 | $0 |
| (+) Curr Use (NHS): | + | $0 | $0 |
| | | -------------------------- | |
| (=) Market Value: | = | $673,621 | |
| (–) Productivity Loss: | – | $0 | |
| | | -------------------------- | |
| (=) Subtotal: | = | $673,621 | |
| (+) Senior Appraised Value: | + | $0 | |
| (+) Non-Senior Appraised Value: | + | $673,621 | |
| | | -------------------------- | |
| (=) Total Appraised Value: | = | $673,621 | |
| (–) Senior Exemption Loss: | – | $0 | |
| (–) Exemption Loss: | – | $0 | |
| | | -------------------------- | |
| (=) Taxable Value: | = | $673,621 | |
Taxing Jurisdiction
| Owner: | JOHN M & BARBARA J SWEET | | |
| % Ownership: | 100.0000000000% | | |
| Total Value: | N/A | | |
| Tax Area: | 0213 - 1-49F1E1H2L1 |
| CE | COUNTY CURRENT EXPENSE | N/A | N/A | N/A | N/A | | |
| CNTYDD | DEVELOPMENTAL DISABILITIES | N/A | N/A | N/A | N/A | | |
| CNTYVET | VETERANS RELIEF | N/A | N/A | N/A | N/A | | |
| MENTAL | MENTAL HEALTH | N/A | N/A | N/A | N/A | | |
| ROADS | COUNTY ROADS | N/A | N/A | N/A | N/A | | |
| ROADSCU | COUNTY ROADS TO CUR EXP | N/A | N/A | N/A | N/A | | |
| HOSP2CASH | HOSP DIST #2 GENERAL | N/A | N/A | N/A | N/A | | |
| SCH49CP | SCHOOL DIST #49 CAP PROJ | N/A | N/A | N/A | N/A | | |
| SCH49MO | SCHOOL DIST #49 EP & O | N/A | N/A | N/A | N/A | | |
| CONSERVE | CONSERVATION FUTURES | N/A | N/A | N/A | N/A | | |
| EMS1 | FIRE DIST #1 EMS | N/A | N/A | N/A | N/A | | |
| FD1 | FIRE DIST #1 GENERAL | N/A | N/A | N/A | N/A | | |
| LIB1 | LIBRARY DIST #1 GENERAL | N/A | N/A | N/A | N/A | | |
| PORTPT | PORT OF PT GENERAL | N/A | N/A | N/A | N/A | | |
| PORTPTIDD | PORT OF PT IDD 2019 | N/A | N/A | N/A | N/A | | |
| PUD1 | PUD #1 GENERAL | N/A | N/A | N/A | N/A | | |
| STATE | STATE SCHOOL PART 1 | N/A | N/A | N/A | N/A | | |
| STATE2 | STATE SCHOOL PART 2 | N/A | N/A | N/A | N/A | | |
| | Total Tax Rate: | N/A | | | | | |
| | | | | Taxes w/Current Exemptions: | N/A | | |
| | | | | Taxes w/o Exemptions: | N/A | | |
Improvement / Building
| Improvement #1: | Residential Bldg | State Code: | 11 | 2190.0 sqft | Value: | $458,621 |
| Bathrooms (#): | 2 (FULL) | Bathrooms (#): | 1 (HALF) | | Bedrooms (#): | 2 | Exterior Wall: | SI/ST | | Fireplace: | SIN 1-GOOD | Floor Construction: | FRAME | | Foundation: | CONPR | Heating/Cooling: | HPUMP | | Inside Verify: | YES-FIX | Roof Cover: | COMP |
|
| | Type | Description | Class CD | Sub Class CD | Year Built | Area |
| | MA | Main Area | 4 | 1S | 2003 | 2190.0 |
| | HCPOR | House Concrete Porch | 4 | 1S | 2003 | 84.0 |
| | HDECK | House Deck | 4 | 1S | 2003 | 277.0 |
| | GATT | House Attached Garage | 4 | 1S | 2003 | 617.0 |
| | CONCD | Concrete Drive | 4 | 1S | 2003 | 660.0 |
Sketch
| No sketches available for this property. |
Property Image
Land
| 1 | 3340-1143L | Panaramic Wtr/Mtn View Timberton & LLP | 0.0000 | 0.00 | 0.00 | 0.00 | 1.00 | $215,000 | $0 |
Roll Value History
| 2025 | N/A | N/A | N/A | N/A | N/A |
| 2024 | $458,621 | $215,000 | $0 | $673,621 | $673,621 |
| 2023 | $458,621 | $200,000 | $0 | $658,621 | $658,621 |
| 2022 | $458,621 | $195,000 | $0 | $653,621 | $653,621 |
| 2021 | $321,945 | $182,000 | $0 | $503,945 | $503,945 |
Deed and Sales History
| 1 | 02/24/2016 | SWD | Statutory Warranty Deed | HOWARD BLACKLEY | JOHN M & BARBARA J SWEET | | | $377,500.00 | 125102 | |
| 2 | 11/03/2015 | TRED | Trustee Deed | HOWARD A BLACKLEY | HOWARD BLACKLEY | | | | 124332 | |
| 3 | 10/07/2003 | QCD | Quit Claim Deed | BLACKLEY, HOWARD A/VIRGIN | BLACKLEY, HOWARD & VIRGINIA/TR | 0 | 0 | $0.00 | 98483 | 0 |
| 4 | 06/04/2003 | SWD | Statutory Warranty Deed | PORT LUDLOW ASSOCIATES LL | BLACKLEY, HOWARD A/VIRGINIA | 0 | 0 | $345,800.00 | 97463 | 0 |
Payout Agreement
| No payout information available.. |