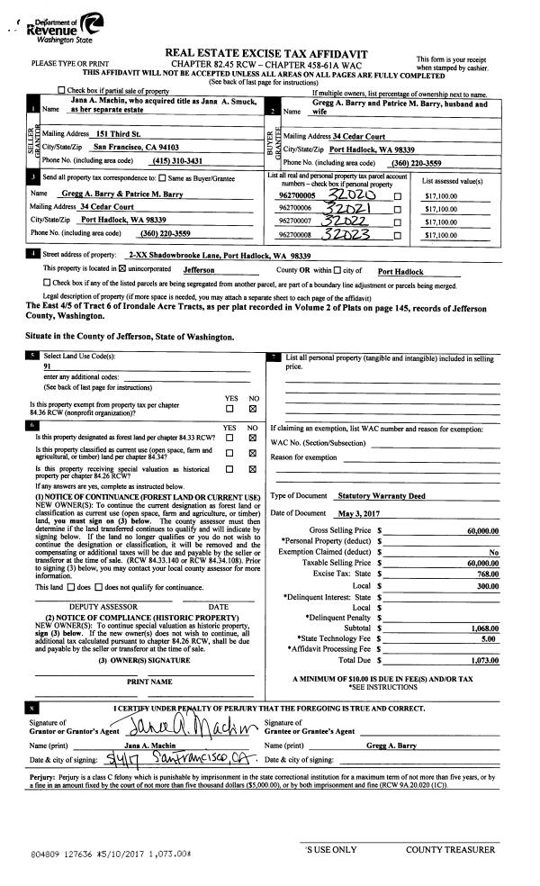
Property
Account |
| Property ID: | 43458 | Abbreviated Legal Description: | TEAL LAKE VILLAGE LOT 33 |
| Parcel # / Geo ID: | 998700033 | Agent Code: | |
| Type: | Real | | |
| Tax Area: | 0213 - 1-49F1E1H2L1 | Land Use Code | 11 |
| Open Space: | N | DFL | N |
| Historic Property: | N | Remodel Property: | N |
| Multi-Family Redevelopment: | N | | |
| Township: | 28N | Section: | 21 |
| Range: | 1E |
Location |
| Address: | 53 SEA VISTA PL PORT LUDLOW, WA 98365 | Mapsco: | 134/032 |
| Neighborhood: | TEAL LAKE VILLAGE & FAIRWOOD VILLAGE | Map ID: | |
| Neighborhood CD: | 3351 |
Owner |
| Name: | CHRISTOPHER V & CORRINE M KOHANEK | Owner ID: | 97846 |
| Mailing Address: | 53 SEA VISTA PL PORT LUDLOW, WA 98365-9586 | % Ownership: | 100.0000000000% |
| | | Exemptions: | |
Pay Tax Due
There is currently No Amount Due on this property.
Taxes and Assessment Details
Property Tax Information as of
10/24/2025
Click on "Statement Details" to expand or collapse a tax statement.
* Please enter a valid date ** Please enter a valid date *
Statement Details |
| | TOTAL: | $0.00 | $0.00 | $0.00 | $0.00 | $0.00 | $0.00 |
|
| | $0.00 | $0.00 | $0.00 | $0.00 | $0.00 | $0.00 |
Values
| (+) Improvement Homesite Value: | + | $0 | |
| (+) Improvement Non-Homesite Value: | + | $492,394 | |
| (+) Land Homesite Value: | + | $0 | |
| (+) Land Non-Homesite Value: | + | $120,750 | |
| (+) Curr Use (HS): | + | $0 | $0 |
| (+) Curr Use (NHS): | + | $0 | $0 |
| | | -------------------------- | |
| (=) Market Value: | = | $613,144 | |
| (–) Productivity Loss: | – | $0 | |
| | | -------------------------- | |
| (=) Subtotal: | = | $613,144 | |
| (+) Senior Appraised Value: | + | $0 | |
| (+) Non-Senior Appraised Value: | + | $613,144 | |
| | | -------------------------- | |
| (=) Total Appraised Value: | = | $613,144 | |
| (–) Senior Exemption Loss: | – | $0 | |
| (–) Exemption Loss: | – | $0 | |
| | | -------------------------- | |
| (=) Taxable Value: | = | $613,144 | |
Taxing Jurisdiction
| Owner: | CHRISTOPHER V & CORRINE M KOHANEK | | |
| % Ownership: | 100.0000000000% | | |
| Total Value: | N/A | | |
| Tax Area: | 0213 - 1-49F1E1H2L1 |
| CE | COUNTY CURRENT EXPENSE | N/A | N/A | N/A | N/A | | |
| CNTYDD | DEVELOPMENTAL DISABILITIES | N/A | N/A | N/A | N/A | | |
| CNTYVET | VETERANS RELIEF | N/A | N/A | N/A | N/A | | |
| MENTAL | MENTAL HEALTH | N/A | N/A | N/A | N/A | | |
| ROADS | COUNTY ROADS | N/A | N/A | N/A | N/A | | |
| ROADSCU | COUNTY ROADS TO CUR EXP | N/A | N/A | N/A | N/A | | |
| HOSP2CASH | HOSP DIST #2 GENERAL | N/A | N/A | N/A | N/A | | |
| SCH49CP | SCHOOL DIST #49 CAP PROJ | N/A | N/A | N/A | N/A | | |
| SCH49MO | SCHOOL DIST #49 EP & O | N/A | N/A | N/A | N/A | | |
| CONSERVE | CONSERVATION FUTURES | N/A | N/A | N/A | N/A | | |
| EMS1 | FIRE DIST #1 EMS | N/A | N/A | N/A | N/A | | |
| FD1 | FIRE DIST #1 GENERAL | N/A | N/A | N/A | N/A | | |
| LIB1 | LIBRARY DIST #1 GENERAL | N/A | N/A | N/A | N/A | | |
| PORTPT | PORT OF PT GENERAL | N/A | N/A | N/A | N/A | | |
| PORTPTIDD | PORT OF PT IDD 2019 | N/A | N/A | N/A | N/A | | |
| PUD1 | PUD #1 GENERAL | N/A | N/A | N/A | N/A | | |
| STATE | STATE SCHOOL PART 1 | N/A | N/A | N/A | N/A | | |
| STATE2 | STATE SCHOOL PART 2 | N/A | N/A | N/A | N/A | | |
| | Total Tax Rate: | N/A | | | | | |
| | | | | Taxes w/Current Exemptions: | N/A | | |
| | | | | Taxes w/o Exemptions: | N/A | | |
Improvement / Building
| Improvement #1: | Residential Bldg | State Code: | 11 | 1842.0 sqft | Value: | $492,394 |
| Bathrooms (#): | 2 (FULL) | Bathrooms (#): | 1 (HALF) | | Bedrooms (#): | 2 | Exterior Wall: | SI/ST | | Fireplace: | SIN 1-GOOD | Floor Construction: | FRAME | | Foundation: | CONPR | Heating/Cooling: | HPUMP | | Inside Verify: | YES | Roof Cover: | COMP |
|
| | Type | Description | Class CD | Sub Class CD | Year Built | Area |
| | MA | Main Area | 4+ | 1S | 1992 | 1842.0 |
| | HCPOR | House Concrete Porch | 4 | 1S | 1992 | 48.0 |
| | HDECK | House Deck | 4 | 1S | 1992 | 104.0 |
| | HENCL | House Enclosure | 4 | 1S | 1992 | 240.0 |
| | GATT | House Attached Garage | 4 | 1S | 1992 | 569.0 |
| | CONCD | Concrete Drive | 4 | 1S | 1992 | 700.0 |
Sketch
| No sketches available for this property. |
Property Image
Land
| 1 | 3351-1165L | Filtered Water View Lots | 0.0000 | 0.00 | 0.00 | 0.00 | 1.00 | $120,750 | $0 |
Roll Value History
| 2025 | N/A | N/A | N/A | N/A | N/A |
| 2024 | $492,394 | $120,750 | $0 | $613,144 | $613,144 |
| 2023 | $470,986 | $110,000 | $0 | $580,986 | $580,986 |
| 2022 | $470,986 | $105,000 | $0 | $575,986 | $575,986 |
| 2021 | $347,956 | $84,500 | $0 | $432,456 | $432,456 |
Deed and Sales History
| 1 | 08/16/2017 | SWD | Statutory Warranty Deed | ROSE YIM REVOCABLE TRUST | CHRISTOPHER V & CORRINE M KOHANEK | | | $348,000.00 | 128404 | |
| 2 | 10/10/2014 | QCD | Quit Claim Deed | EARL YIM JR | ROSE YIM REVOCABLE TRUST | | | | 122188 | |
| 3 | 10/08/1996 | SWD | Statutory Warranty Deed | KANNING, JOHN H/MARJORIE | YIM, EARL/JR & ROSE S | 0 | 0 | $200,000.00 | 80631 | 0 |
| 4 | 08/08/1994 | SWD | Statutory Warranty Deed | VILLAGE HOMES INC | KANNING, JOHN H/MARJORIE J | 0 | 0 | $214,990.00 | 74956 | 0 |
| 5 | 06/18/1993 | SWD | Statutory Warranty Deed | POPE RESOURCES | VILLAGE HOMES INC | 0 | 0 | $0.00 | 74888 | 0 |
Payout Agreement
| No payout information available.. |