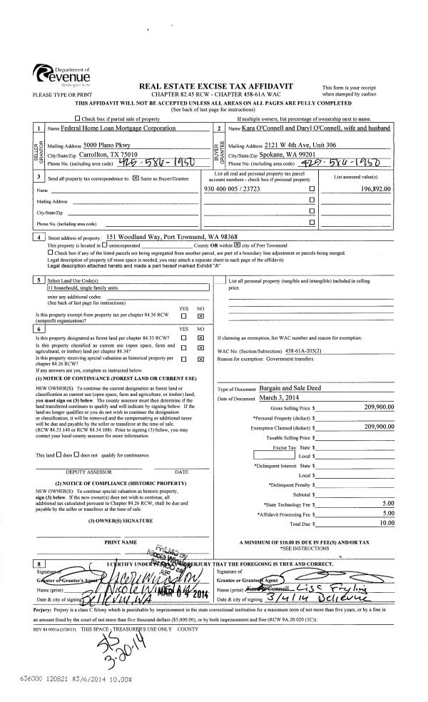
Property
Account |
| Property ID: | 43519 | Abbreviated Legal Description: | TEAL LAKE VILLAGE LOT 94 |
| Parcel # / Geo ID: | 998700094 | Agent Code: | |
| Type: | Real | | |
| Tax Area: | 0213 - 1-49F1E1H2L1 | Land Use Code | 11 |
| Open Space: | N | DFL | N |
| Historic Property: | N | Remodel Property: | N |
| Multi-Family Redevelopment: | N | | |
| Township: | 28N | Section: | 21 |
| Range: | 1E |
Location |
| Address: | 47 OUTLOOK LN PORT LUDLOW, WA 98365 | Mapsco: | 135/044 |
| Neighborhood: | TEAL LAKE VILLAGE & FAIRWOOD VILLAGE | Map ID: | |
| Neighborhood CD: | 3351 |
Owner |
| Name: | CHRISTINE SPAGLE | Owner ID: | 107433 |
| Mailing Address: | 47 OUTLOOK LN PORT LUDOW, WA 98365-8002 | % Ownership: | 100.0000000000% |
| | | Exemptions: | |
Pay Tax Due
There is currently No Amount Due on this property.
Taxes and Assessment Details
Property Tax Information as of
10/24/2025
Click on "Statement Details" to expand or collapse a tax statement.
* Please enter a valid date ** Please enter a valid date *
Statement Details |
| | TOTAL: | $0.00 | $0.00 | $0.00 | $0.00 | $0.00 | $0.00 |
|
| | $0.00 | $0.00 | $0.00 | $0.00 | $0.00 | $0.00 |
Values
| (+) Improvement Homesite Value: | + | $0 | |
| (+) Improvement Non-Homesite Value: | + | $560,834 | |
| (+) Land Homesite Value: | + | $0 | |
| (+) Land Non-Homesite Value: | + | $120,750 | |
| (+) Curr Use (HS): | + | $0 | $0 |
| (+) Curr Use (NHS): | + | $0 | $0 |
| | | -------------------------- | |
| (=) Market Value: | = | $681,584 | |
| (–) Productivity Loss: | – | $0 | |
| | | -------------------------- | |
| (=) Subtotal: | = | $681,584 | |
| (+) Senior Appraised Value: | + | $0 | |
| (+) Non-Senior Appraised Value: | + | $681,584 | |
| | | -------------------------- | |
| (=) Total Appraised Value: | = | $681,584 | |
| (–) Senior Exemption Loss: | – | $0 | |
| (–) Exemption Loss: | – | $0 | |
| | | -------------------------- | |
| (=) Taxable Value: | = | $681,584 | |
Taxing Jurisdiction
| Owner: | CHRISTINE SPAGLE | | |
| % Ownership: | 100.0000000000% | | |
| Total Value: | N/A | | |
| Tax Area: | 0213 - 1-49F1E1H2L1 |
| CE | COUNTY CURRENT EXPENSE | N/A | N/A | N/A | N/A | | |
| CNTYDD | DEVELOPMENTAL DISABILITIES | N/A | N/A | N/A | N/A | | |
| CNTYVET | VETERANS RELIEF | N/A | N/A | N/A | N/A | | |
| MENTAL | MENTAL HEALTH | N/A | N/A | N/A | N/A | | |
| ROADS | COUNTY ROADS | N/A | N/A | N/A | N/A | | |
| ROADSCU | COUNTY ROADS TO CUR EXP | N/A | N/A | N/A | N/A | | |
| HOSP2CASH | HOSP DIST #2 GENERAL | N/A | N/A | N/A | N/A | | |
| SCH49CP | SCHOOL DIST #49 CAP PROJ | N/A | N/A | N/A | N/A | | |
| SCH49MO | SCHOOL DIST #49 EP & O | N/A | N/A | N/A | N/A | | |
| CONSERVE | CONSERVATION FUTURES | N/A | N/A | N/A | N/A | | |
| EMS1 | FIRE DIST #1 EMS | N/A | N/A | N/A | N/A | | |
| FD1 | FIRE DIST #1 GENERAL | N/A | N/A | N/A | N/A | | |
| LIB1 | LIBRARY DIST #1 GENERAL | N/A | N/A | N/A | N/A | | |
| PORTPT | PORT OF PT GENERAL | N/A | N/A | N/A | N/A | | |
| PORTPTIDD | PORT OF PT IDD 2019 | N/A | N/A | N/A | N/A | | |
| PUD1 | PUD #1 GENERAL | N/A | N/A | N/A | N/A | | |
| STATE | STATE SCHOOL PART 1 | N/A | N/A | N/A | N/A | | |
| STATE2 | STATE SCHOOL PART 2 | N/A | N/A | N/A | N/A | | |
| | Total Tax Rate: | N/A | | | | | |
| | | | | Taxes w/Current Exemptions: | N/A | | |
| | | | | Taxes w/o Exemptions: | N/A | | |
Improvement / Building
| Improvement #1: | Residential Bldg | State Code: | 11 | 2537.0 sqft | Value: | $560,834 |
| Bathrooms (#): | 2 (FULL) | Bathrooms (#): | 1 (HALF) | | Bedrooms (#): | 2 | Exterior Wall: | SI/ST | | Fireplace: | SIN 2-GOOD | Floor Construction: | FRAME | | Foundation: | CONPR | Heating/Cooling: | HPUMP | | Inside Verify: | YES | Roof Cover: | COMP |
|
| | Type | Description | Class CD | Sub Class CD | Year Built | Area |
| | MA | Main Area | 4+ | 15SF | 2001 | 1818.0 |
| | MA2 | Second Floor Main Area | 4+ | 15SF | 2001 | 719.0 |
| | HCPOR | House Concrete Porch | 4 | 15SF | 2001 | 180.0 |
| | HDECK | House Deck | 4 | 15SF | 2001 | 428.0 |
| | GATT | House Attached Garage | 4 | 15SF | 2001 | 530.0 |
| | CONCD | Concrete Drive | 4 | 15SF | 2001 | 510.0 |
Sketch
| No sketches available for this property. |
Property Image
Land
| 1 | 3351-1165L | Filtered Water View Lots | 0.0000 | 0.00 | 0.00 | 0.00 | 1.00 | $120,750 | $0 |
Roll Value History
| 2025 | N/A | N/A | N/A | N/A | N/A |
| 2024 | $560,834 | $120,750 | $0 | $681,584 | $681,584 |
| 2023 | $536,450 | $110,000 | $0 | $646,450 | $646,450 |
| 2022 | $536,450 | $105,000 | $0 | $641,450 | $641,450 |
| 2021 | $396,435 | $97,500 | $0 | $493,935 | $493,935 |
Deed and Sales History
| 1 | 07/21/2022 | DTH CERT | Death Certificate | MCLOUGHLIN SPAGLE | CHRISTINE SPAGLE | | | | 139572 | |
| 2 | 04/07/2016 | CPA | Community Property Agreement | MCLOUGHLIN SPAGLE | CHRISTINE SPAGLE | | | | 139571 | |
| 3 | 11/25/2014 | SWD | Statutory Warranty Deed | DIANE K RUFF TRUSTEE | MCLOUGHLIN & CHRISTINE SPAGLE | | | $349,000.00 | 122342 | |
| 4 | 11/13/2008 | QCD | Quit Claim Deed | RUFF, DIANE K | RUFF, DIANE K TRUSTEE OF THE D | 0 | 0 | $0.00 | 112180 | 0 |
| 5 | 06/23/2005 | SWD | Statutory Warranty Deed | PIPER, JACK L/MARLOWE A | RUFF, DIANE K | | | $451,500.00 | 103961 | 0 |
| 6 | 06/23/2005 | SWD | Statutory Warranty Deed | JACK L PIPER | DIANE K RUFF TRUSTEE | | | | 119332 | |
| 7 | 07/27/2001 | SWD | Statutory Warranty Deed | OLYMPSIC REAL ESTATE DEVE | PIPER, JACK L/MARLOWE ANN | 0 | 0 | $316,900.00 | 92787 | 0 |
Payout Agreement
| No payout information available.. |