Property
Account |
| Property ID: | 43537 | Abbreviated Legal Description: | TIBBALS 1ST ADDITION BLK 4 LOT 5 LOTS OF RECORD #521557 SUBJ/REST COV AFN 539219 & 539310 |
| Parcel # / Geo ID: | 998800405 | Agent Code: | |
| Type: | Real | | |
| Tax Area: | 0110 - C-50F1E1H2 | Land Use Code | 91 |
| Open Space: | N | DFL | N |
| Historic Property: | N | Remodel Property: | N |
| Multi-Family Redevelopment: | N | | |
| Township: | 31N | Section: | 34 |
| Range: | 1W |
Location |
| Address: | 0 PORT TOWNSEND, WA 98368 | Mapsco: | 135/024 |
| Neighborhood: | HL TIBBALS 1ST, RILEYS ADD AND DUNCAN HILLTOP | Map ID: | |
| Neighborhood CD: | 6045 |
Owner |
| Name: | BRADY CONSTRUCTION INC | Owner ID: | 11953 |
| Mailing Address: | 1284 43RD ST PORT TOWNSEND, WA 98368-1525 | % Ownership: | 100.0000000000% |
| | | Exemptions: | |
Pay Tax Due
There is currently No Amount Due on this property.
Taxes and Assessment Details
Property Tax Information as of
10/24/2025
Click on "Statement Details" to expand or collapse a tax statement.
* Please enter a valid date ** Please enter a valid date *
Statement Details |
| | TOTAL: | $0.00 | $0.00 | $0.00 | $0.00 | $0.00 | $0.00 |
|
| | $0.00 | $0.00 | $0.00 | $0.00 | $0.00 | $0.00 |
Values
| (+) Improvement Homesite Value: | + | $0 | |
| (+) Improvement Non-Homesite Value: | + | $0 | |
| (+) Land Homesite Value: | + | $0 | |
| (+) Land Non-Homesite Value: | + | $60,000 | |
| (+) Curr Use (HS): | + | $0 | $0 |
| (+) Curr Use (NHS): | + | $0 | $0 |
| | | -------------------------- | |
| (=) Market Value: | = | $60,000 | |
| (–) Productivity Loss: | – | $0 | |
| | | -------------------------- | |
| (=) Subtotal: | = | $60,000 | |
| (+) Senior Appraised Value: | + | $0 | |
| (+) Non-Senior Appraised Value: | + | $60,000 | |
| | | -------------------------- | |
| (=) Total Appraised Value: | = | $60,000 | |
| (–) Senior Exemption Loss: | – | $0 | |
| (–) Exemption Loss: | – | $0 | |
| | | -------------------------- | |
| (=) Taxable Value: | = | $60,000 | |
Taxing Jurisdiction
| Owner: | BRADY CONSTRUCTION INC | | |
| % Ownership: | 100.0000000000% | | |
| Total Value: | N/A | | |
| Tax Area: | 0110 - C-50F1E1H2 |
| CE | COUNTY CURRENT EXPENSE | N/A | N/A | N/A | N/A | | |
| CNTYDD | DEVELOPMENTAL DISABILITIES | N/A | N/A | N/A | N/A | | |
| CNTYVET | VETERANS RELIEF | N/A | N/A | N/A | N/A | | |
| MENTAL | MENTAL HEALTH | N/A | N/A | N/A | N/A | | |
| PTGEN | CITY OF PT GENERAL | N/A | N/A | N/A | N/A | | |
| PTLLL | CITY OF PT - LIBRARY LID LIFT | N/A | N/A | N/A | N/A | | |
| PTMVBOND | CITY OF PT MV BOND | N/A | N/A | N/A | N/A | | |
| HOSP2CASH | HOSP DIST #2 GENERAL | N/A | N/A | N/A | N/A | | |
| SCH50BOND | SCHOOL DIST #50 BOND 2016 | N/A | N/A | N/A | N/A | | |
| SCH50CP | SCHOOL DIST #50 CAP PROJ | N/A | N/A | N/A | N/A | | |
| SCH50MO | SCHOOL DIST #50 EP & O | N/A | N/A | N/A | N/A | | |
| CONSERVE | CONSERVATION FUTURES | N/A | N/A | N/A | N/A | | |
| EMS1 | FIRE DIST #1 EMS | N/A | N/A | N/A | N/A | | |
| FD1 | FIRE DIST #1 GENERAL | N/A | N/A | N/A | N/A | | |
| PORTPT | PORT OF PT GENERAL | N/A | N/A | N/A | N/A | | |
| PORTPTIDD | PORT OF PT IDD 2019 | N/A | N/A | N/A | N/A | | |
| PUD1 | PUD #1 GENERAL | N/A | N/A | N/A | N/A | | |
| STATE | STATE SCHOOL PART 1 | N/A | N/A | N/A | N/A | | |
| STATE2 | STATE SCHOOL PART 2 | N/A | N/A | N/A | N/A | | |
| | Total Tax Rate: | N/A | | | | | |
| | | | | Taxes w/Current Exemptions: | N/A | | |
| | | | | Taxes w/o Exemptions: | N/A | | |
Improvement / Building
Sketch
| No sketches available for this property. |
Property Image
Land
| 1 | 6045-1275S | Buildable 2 Lot Sites w/Access/Utilities Near | 0.0000 | 0.00 | 0.00 | 0.00 | 1.00 | $60,000 | $0 |
Roll Value History
| 2025 | N/A | N/A | N/A | N/A | N/A |
| 2024 | $0 | $75,600 | $0 | $75,600 | $75,600 |
| 2023 | $0 | $72,000 | $0 | $72,000 | $72,000 |
| 2022 | $0 | $72,000 | $0 | $72,000 | $72,000 |
| 2021 | $0 | $56,925 | $0 | $56,925 | $56,925 |
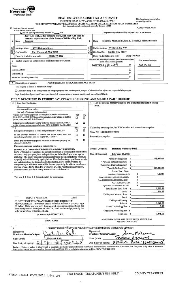
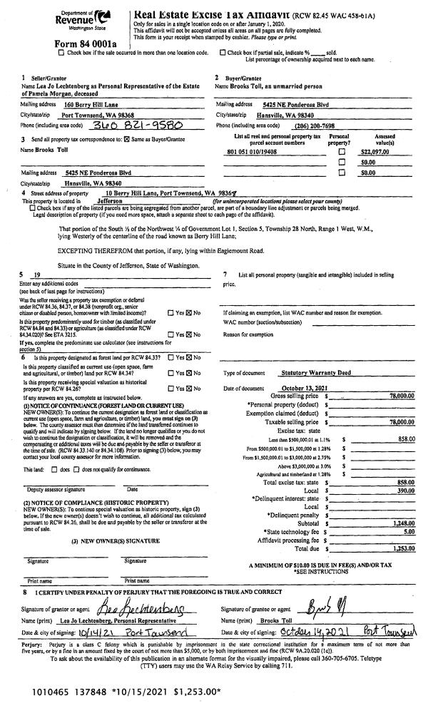
Deed and Sales History
| 1 | 09/29/2023 | SWD | Statutory Warranty Deed | ROBERT J & DORI H BUTLER | BRADY CONSTRUCTION INC | | | $144,000.00 | 141639 | |
|   | |
| 2 | 04/19/2022 | SWD | Statutory Warranty Deed | DAN & KELLY RICHARDS | ROBERT J & DORI H BUTLER | | | $225,000.00 | 138962 | |
|   | |
| 3 | 11/10/2021 | SWD | Statutory Warranty Deed | RICHARD C KUTSCH TRUSTEE | DAN & KELLY RICHARDS | | | $170,000.00 | 138070 | |
|   | |
| 4 | 01/04/2010 | SWD | Statutory Warranty Deed | BRADY CONSTRUCTION INC | KUTSCH, RICHARD/SUSAN | 0 | 0 | $125,000.00 | 113871 | 0 |
|   | |
| 5 | 09/19/2006 | QCD | Quit Claim Deed | BRADY, DARREN E/RITAQ | BRADY CONSTRUCTION INC | 0 | 0 | $0.00 | 107647 | 0 |
| 6 | 06/13/2006 | SWD | Statutory Warranty Deed | JELLERSON, KEITH T/HEATHE | BRADY, DARREN/RITA | | | $75,000.00 | 106925 | 0 |
Payout Agreement
| No payout information available.. |