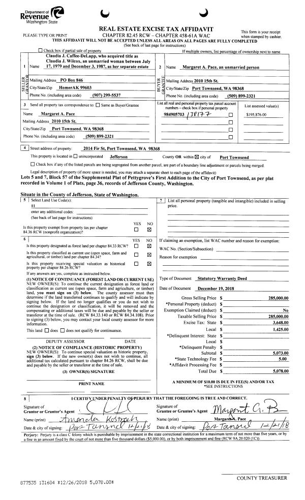
Property
Account |
| Property ID: | 43543 | Abbreviated Legal Description: | TIBBALS 1ST ADDITION BLK 5 LOTS 2,3,4(LS S66.20'OF EA) LTS 5,6,7(LS N66.20'OF EA) BND TGTH THRU LLA AFN525057 SUBJ/ |
| Parcel # / Geo ID: | 998800504 | Agent Code: | |
| Type: | Real | | |
| Tax Area: | 0110 - C-50F1E1H2 | Land Use Code | 11 |
| Open Space: | N | DFL | N |
| Historic Property: | N | Remodel Property: | N |
| Multi-Family Redevelopment: | N | | |
| Township: | 31N | Section: | 34 |
| Range: | 1W |
Location |
| Address: | 4345 GRANT ST PORT TOWNSEND, WA 98368 | Mapsco: | 135/031 |
| Neighborhood: | HL TIBBALS 1ST, RILEYS ADD AND DUNCAN HILLTOP | Map ID: | |
| Neighborhood CD: | 6045 |
Owner |
| Name: | JEFFREY A TAYLOR & LINDA S LENZ | Owner ID: | 101279 |
| Mailing Address: | 4345 GRANT ST PORT TOWNSEND, WA 98368-2022 | % Ownership: | 100.0000000000% |
| | | Exemptions: | |
Pay Tax Due
There is currently No Amount Due on this property.
Taxes and Assessment Details
Property Tax Information as of
10/24/2025
Click on "Statement Details" to expand or collapse a tax statement.
* Please enter a valid date ** Please enter a valid date *
Statement Details |
| | TOTAL: | $0.00 | $0.00 | $0.00 | $0.00 | $0.00 | $0.00 |
|
| | $0.00 | $0.00 | $0.00 | $0.00 | $0.00 | $0.00 |
Values
| (+) Improvement Homesite Value: | + | $0 | |
| (+) Improvement Non-Homesite Value: | + | $557,500 | |
| (+) Land Homesite Value: | + | $0 | |
| (+) Land Non-Homesite Value: | + | $150,000 | |
| (+) Curr Use (HS): | + | $0 | $0 |
| (+) Curr Use (NHS): | + | $0 | $0 |
| | | -------------------------- | |
| (=) Market Value: | = | $707,500 | |
| (–) Productivity Loss: | – | $0 | |
| | | -------------------------- | |
| (=) Subtotal: | = | $707,500 | |
| (+) Senior Appraised Value: | + | $0 | |
| (+) Non-Senior Appraised Value: | + | $707,500 | |
| | | -------------------------- | |
| (=) Total Appraised Value: | = | $707,500 | |
| (–) Senior Exemption Loss: | – | $0 | |
| (–) Exemption Loss: | – | $0 | |
| | | -------------------------- | |
| (=) Taxable Value: | = | $707,500 | |
Taxing Jurisdiction
| Owner: | JEFFREY A TAYLOR & LINDA S LENZ | | |
| % Ownership: | 100.0000000000% | | |
| Total Value: | N/A | | |
| Tax Area: | 0110 - C-50F1E1H2 |
| CE | COUNTY CURRENT EXPENSE | N/A | N/A | N/A | N/A | | |
| CNTYDD | DEVELOPMENTAL DISABILITIES | N/A | N/A | N/A | N/A | | |
| CNTYVET | VETERANS RELIEF | N/A | N/A | N/A | N/A | | |
| MENTAL | MENTAL HEALTH | N/A | N/A | N/A | N/A | | |
| PTGEN | CITY OF PT GENERAL | N/A | N/A | N/A | N/A | | |
| PTLLL | CITY OF PT - LIBRARY LID LIFT | N/A | N/A | N/A | N/A | | |
| PTMVBOND | CITY OF PT MV BOND | N/A | N/A | N/A | N/A | | |
| HOSP2CASH | HOSP DIST #2 GENERAL | N/A | N/A | N/A | N/A | | |
| SCH50BOND | SCHOOL DIST #50 BOND 2016 | N/A | N/A | N/A | N/A | | |
| SCH50CP | SCHOOL DIST #50 CAP PROJ | N/A | N/A | N/A | N/A | | |
| SCH50MO | SCHOOL DIST #50 EP & O | N/A | N/A | N/A | N/A | | |
| CONSERVE | CONSERVATION FUTURES | N/A | N/A | N/A | N/A | | |
| EMS1 | FIRE DIST #1 EMS | N/A | N/A | N/A | N/A | | |
| FD1 | FIRE DIST #1 GENERAL | N/A | N/A | N/A | N/A | | |
| PORTPT | PORT OF PT GENERAL | N/A | N/A | N/A | N/A | | |
| PORTPTIDD | PORT OF PT IDD 2019 | N/A | N/A | N/A | N/A | | |
| PUD1 | PUD #1 GENERAL | N/A | N/A | N/A | N/A | | |
| STATE | STATE SCHOOL PART 1 | N/A | N/A | N/A | N/A | | |
| STATE2 | STATE SCHOOL PART 2 | N/A | N/A | N/A | N/A | | |
| | Total Tax Rate: | N/A | | | | | |
| | | | | Taxes w/Current Exemptions: | N/A | | |
| | | | | Taxes w/o Exemptions: | N/A | | |
Improvement / Building
| Improvement #1: | Residential Bldg | State Code: | 11 | 1739.0 sqft | Value: | $557,500 |
| Bathrooms (#): | 2 (FULL) | Bedrooms (#): | 3 | | Exterior Wall: | SI/ST | Fireplace: | PROPS-GOOD | | Floor Construction: | FRAME | Foundation: | CONPR | | Heating/Cooling: | HPUMP | Roof Cover: | COMP |
|
| | Type | Description | Class CD | Sub Class CD | Year Built | Area |
| | MA | Main Area | 5+ | 2S | 2016 | 907.0 |
| | MA2 | Second Floor Main Area | 5+ | 2S | 2016 | 832.0 |
| | GDET | Detached Garage | 5 | * | 2016 | 328.0 |
| | HCPOR | House Concrete Porch | 5 | * | 2016 | 148.0 |
| | ASPHD | Asphalt Drive | 5 | * | 2016 | 1200.0 |
| | HWPOR | House Wood Porch | 5 | * | 2016 | 32.0 |
Sketch
Property Image
Land
| 1 | 6045-1275S | Buildable 2 Lot Sites w/Access/Utilities Near | 0.0000 | 0.00 | 0.00 | 0.00 | 1.00 | $150,000 | $0 |
Roll Value History
| 2025 | N/A | N/A | N/A | N/A | N/A |
| 2024 | $528,831 | $157,500 | $0 | $686,331 | $686,331 |
| 2023 | $528,831 | $145,000 | $0 | $673,831 | $673,831 |
| 2022 | $528,830 | $140,000 | $0 | $668,830 | $668,830 |
| 2021 | $442,165 | $131,100 | $0 | $573,265 | $573,265 |
Deed and Sales History
| 1 | 06/27/2019 | SWD | Statutory Warranty Deed | MYLO E CURTIS | JEFFREY A TAYLOR & LINDA S LENZ | | | $535,000.00 | 132669 | |
| 2 | 01/22/2019 | SWD | Statutory Warranty Deed | | | | | | 131744 | |
| 3 | 03/29/2018 | SWD | Statutory Warranty Deed | DARREN R MUIR | MYLO E CURTIS | | | $535,000.00 | 129856 | |
| 4 | 01/06/2009 | SWD | Statutory Warranty Deed | BRADY CONSTRUCTION INC, A | MUIR, DARREN/LEE | 0 | 0 | $412,500.00 | 112465 | 0 |
|   | |
| 5 | 12/04/2006 | QCD | Quit Claim Deed | NEWTON, HEATH/ANDREA | BRADY CONSTRUCTION INC | 0 | 0 | $1,500.00 | 108190 | 0 |
| 6 | 02/18/1999 | SWD | Statutory Warranty Deed | GRAY, LESLIE T & HELVIE/E | NEWTON, HEATH/ANDREA | 0 | 0 | $1,000.00 | 86684 | 0 |
Payout Agreement
| No payout information available.. |