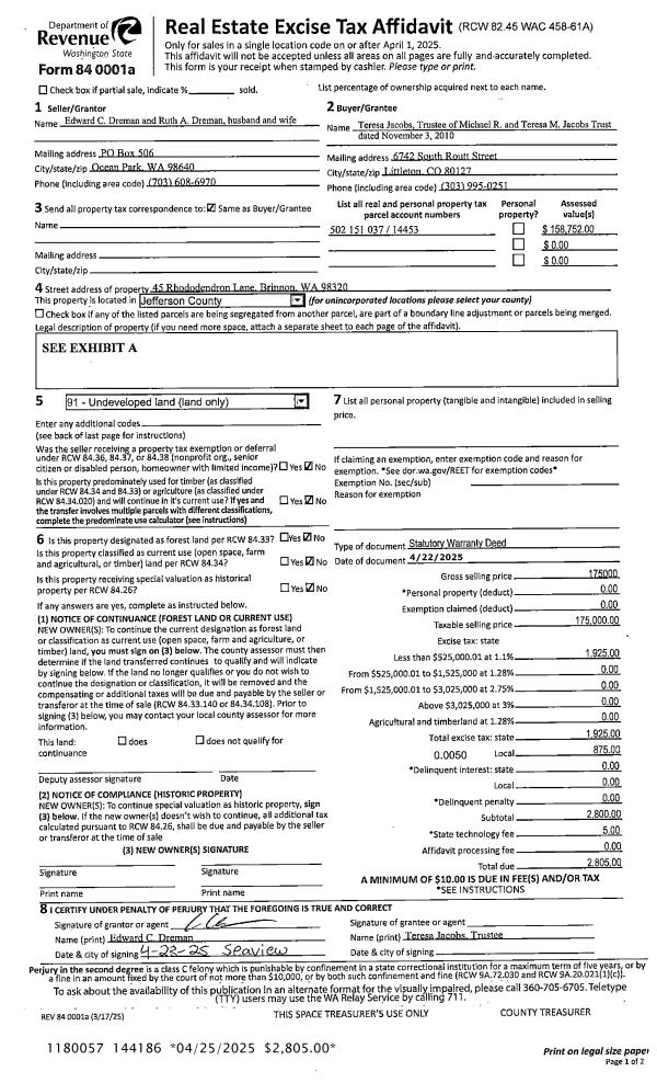
Property
Account |
| Property ID: | 43545 | Abbreviated Legal Description: | TIBBALS 1ST ADDITION BLK 6 LOTS 1,2,3 & 4 CITY LETTER LUP19-073 |
| Parcel # / Geo ID: | 998800601 | Agent Code: | |
| Type: | Real | | |
| Tax Area: | 0110 - C-50F1E1H2 | Land Use Code | 11 |
| Open Space: | N | DFL | N |
| Historic Property: | N | Remodel Property: | N |
| Multi-Family Redevelopment: | N | | |
| Township: | 31N | Section: | 34 |
| Range: | 1W |
Location |
| Address: | 4433 GRANT ST PORT TOWNSEND, WA 98368 | Mapsco: | 135/033 |
| Neighborhood: | HL TIBBALS 1ST, RILEYS ADD AND DUNCAN HILLTOP | Map ID: | |
| Neighborhood CD: | 6045 |
Owner |
| Name: | JAY GAINER & CHRISTINE JOHNSON | Owner ID: | 99669 |
| Mailing Address: | 4433 GRANT ST PORT TOWNSEND, WA 98368-2024 | % Ownership: | 100.0000000000% |
| | | Exemptions: | |
Pay Tax Due
There is currently No Amount Due on this property.
Taxes and Assessment Details
Property Tax Information as of
10/24/2025
Click on "Statement Details" to expand or collapse a tax statement.
* Please enter a valid date ** Please enter a valid date *
Statement Details |
| | TOTAL: | $0.00 | $0.00 | $0.00 | $0.00 | $0.00 | $0.00 |
|
| | $0.00 | $0.00 | $0.00 | $0.00 | $0.00 | $0.00 |
Values
| (+) Improvement Homesite Value: | + | $0 | |
| (+) Improvement Non-Homesite Value: | + | $578,615 | |
| (+) Land Homesite Value: | + | $0 | |
| (+) Land Non-Homesite Value: | + | $240,000 | |
| (+) Curr Use (HS): | + | $0 | $0 |
| (+) Curr Use (NHS): | + | $0 | $0 |
| | | -------------------------- | |
| (=) Market Value: | = | $818,615 | |
| (–) Productivity Loss: | – | $0 | |
| | | -------------------------- | |
| (=) Subtotal: | = | $818,615 | |
| (+) Senior Appraised Value: | + | $0 | |
| (+) Non-Senior Appraised Value: | + | $818,615 | |
| | | -------------------------- | |
| (=) Total Appraised Value: | = | $818,615 | |
| (–) Senior Exemption Loss: | – | $0 | |
| (–) Exemption Loss: | – | $0 | |
| | | -------------------------- | |
| (=) Taxable Value: | = | $818,615 | |
Taxing Jurisdiction
| Owner: | JAY GAINER & CHRISTINE JOHNSON | | |
| % Ownership: | 100.0000000000% | | |
| Total Value: | N/A | | |
| Tax Area: | 0110 - C-50F1E1H2 |
| CE | COUNTY CURRENT EXPENSE | N/A | N/A | N/A | N/A | | |
| CNTYDD | DEVELOPMENTAL DISABILITIES | N/A | N/A | N/A | N/A | | |
| CNTYVET | VETERANS RELIEF | N/A | N/A | N/A | N/A | | |
| MENTAL | MENTAL HEALTH | N/A | N/A | N/A | N/A | | |
| PTGEN | CITY OF PT GENERAL | N/A | N/A | N/A | N/A | | |
| PTLLL | CITY OF PT - LIBRARY LID LIFT | N/A | N/A | N/A | N/A | | |
| PTMVBOND | CITY OF PT MV BOND | N/A | N/A | N/A | N/A | | |
| HOSP2CASH | HOSP DIST #2 GENERAL | N/A | N/A | N/A | N/A | | |
| SCH50BOND | SCHOOL DIST #50 BOND 2016 | N/A | N/A | N/A | N/A | | |
| SCH50CP | SCHOOL DIST #50 CAP PROJ | N/A | N/A | N/A | N/A | | |
| SCH50MO | SCHOOL DIST #50 EP & O | N/A | N/A | N/A | N/A | | |
| CONSERVE | CONSERVATION FUTURES | N/A | N/A | N/A | N/A | | |
| EMS1 | FIRE DIST #1 EMS | N/A | N/A | N/A | N/A | | |
| FD1 | FIRE DIST #1 GENERAL | N/A | N/A | N/A | N/A | | |
| PORTPT | PORT OF PT GENERAL | N/A | N/A | N/A | N/A | | |
| PORTPTIDD | PORT OF PT IDD 2019 | N/A | N/A | N/A | N/A | | |
| PUD1 | PUD #1 GENERAL | N/A | N/A | N/A | N/A | | |
| STATE | STATE SCHOOL PART 1 | N/A | N/A | N/A | N/A | | |
| STATE2 | STATE SCHOOL PART 2 | N/A | N/A | N/A | N/A | | |
| | Total Tax Rate: | N/A | | | | | |
| | | | | Taxes w/Current Exemptions: | N/A | | |
| | | | | Taxes w/o Exemptions: | N/A | | |
Improvement / Building
| Improvement #1: | Residential Bldg | State Code: | 11 | 2147.0 sqft | Value: | $578,615 |
| Bathrooms (#): | 2 (FULL) | Bedrooms (#): | 2 | | Exterior Wall: | SI/ST | Floor Construction: | FRAME | | Foundation: | CONPR | Heating/Cooling: | HPUMP | | Roof Cover: | COMP |   |   |
|
| | Type | Description | Class CD | Sub Class CD | Year Built | Area |
| | MA | Main Area | 5- | 15SF | 2019 | 1445.0 |
| | MA2 | Second Floor Main Area | 5- | 15SF | 2019 | 702.0 |
| | HWPOR | House Wood Porch | 5 | * | 2019 | 96.0 |
| | HDECK | House Deck | 5 | * | 2019 | 416.0 |
| | CONCD | Concrete Drive | 5 | * | 2019 | 518.0 |
| | PATIO | House Patio | 5 | * | 2019 | 118.1 |
| | GATT | House Attached Garage | 5 | 15SF | 2019 | 352.0 |
Sketch
Property Image
Land
| 1 | 6045-1275S | Buildable 2 Lot Sites w/Access/Utilities Near | 0.0000 | 0.00 | 0.00 | 0.00 | 1.00 | $90,000 | $0 |
| 2 | 6045-1275S | Buildable 2 Lot Sites w/Access/Utilities Near | 0.0000 | 0.00 | 0.00 | 0.00 | 1.00 | $150,000 | $0 |
Roll Value History
| 2025 | N/A | N/A | N/A | N/A | N/A |
| 2024 | $562,691 | $252,000 | $0 | $814,691 | $814,691 |
| 2023 | $562,691 | $235,000 | $0 | $797,691 | $797,691 |
| 2022 | $562,691 | $230,000 | $0 | $792,691 | $792,691 |
| 2021 | $470,477 | $216,488 | $0 | $686,965 | $686,965 |
Deed and Sales History
| 1 | 07/31/2018 | SWD | Statutory Warranty Deed | BRADY CONSTRUCTION INC | JAY GAINER & CHRISTINE JOHNSON | | | $209,000.00 | 130708 | |
| 2 | 09/18/2006 | SWD | Statutory Warranty Deed | MAJOR, ANTON | BRADY CONSTRUCTION, INC | 0 | 0 | $0.00 | 107729 | 0 |
Payout Agreement
| No payout information available.. |