Property
Account |
| Property ID: | 43611 | Abbreviated Legal Description: | TIBBALS 1ST ADDITION BLK 37 LOTS 5 & 6 |
| Parcel # / Geo ID: | 998803705 | Agent Code: | |
| Type: | Real | | |
| Tax Area: | 0110 - C-50F1E1H2 | Land Use Code | 11 |
| Open Space: | N | DFL | N |
| Historic Property: | N | Remodel Property: | N |
| Multi-Family Redevelopment: | N | | |
| Township: | 31N | Section: | 34 |
| Range: | 1W |
Location |
| Address: | 1011 43RD ST PORT TOWNSEND, WA 98368 | Mapsco: | 136/027 |
| Neighborhood: | HL TIBBALS 1ST, RILEYS ADD AND DUNCAN HILLTOP | Map ID: | |
| Neighborhood CD: | 6045 |
Owner |
| Name: | JULIE YERXA & GERALD CANOTE | Owner ID: | 94314 |
| Mailing Address: | 1011 43RD ST PORT TOWNSEND, WA 98368-1532 | % Ownership: | 100.0000000000% |
| | | Exemptions: | SNR/DSBL |
Pay Tax Due
There is currently No Amount Due on this property.
Taxes and Assessment Details
Property Tax Information as of
10/24/2025
Click on "Statement Details" to expand or collapse a tax statement.
* Please enter a valid date ** Please enter a valid date *
Statement Details |
| | TOTAL: | $0.00 | $0.00 | $0.00 | $0.00 | $0.00 | $0.00 |
|
| | $0.00 | $0.00 | $0.00 | $0.00 | $0.00 | $0.00 |
Values
| (+) Improvement Homesite Value: | + | $294,478 | |
| (+) Improvement Non-Homesite Value: | + | $28,414 | |
| (+) Land Homesite Value: | + | $156,000 | |
| (+) Land Non-Homesite Value: | + | $0 | |
| (+) Curr Use (HS): | + | $0 | $0 |
| (+) Curr Use (NHS): | + | $0 | $0 |
| | | -------------------------- | |
| (=) Market Value: | = | $478,892 | |
| (–) Productivity Loss: | – | $0 | |
| | | -------------------------- | |
| (=) Subtotal: | = | $478,892 | |
| (+) Senior Appraised Value: | + | $313,400 | |
| (+) Non-Senior Appraised Value: | + | $28,414 | |
| | | -------------------------- | |
| (=) Total Appraised Value: | = | $341,814 | |
| (–) Senior Exemption Loss: | – | $188,040 | |
| (–) Exemption Loss: | – | $0 | |
| | | -------------------------- | |
| (=) Taxable Value: | = | $153,774 | |
Taxing Jurisdiction
| Owner: | JULIE YERXA & GERALD CANOTE | | |
| % Ownership: | 100.0000000000% | | |
| Total Value: | N/A | | |
| Tax Area: | 0110 - C-50F1E1H2 |
| CE | COUNTY CURRENT EXPENSE | N/A | N/A | N/A | N/A | | |
| CNTYDD | DEVELOPMENTAL DISABILITIES | N/A | N/A | N/A | N/A | | |
| CNTYVET | VETERANS RELIEF | N/A | N/A | N/A | N/A | | |
| MENTAL | MENTAL HEALTH | N/A | N/A | N/A | N/A | | |
| PTGEN | CITY OF PT GENERAL | N/A | N/A | N/A | N/A | | |
| PTLLL | CITY OF PT - LIBRARY LID LIFT | N/A | N/A | N/A | N/A | | |
| PTMVBOND | CITY OF PT MV BOND | N/A | N/A | N/A | N/A | | |
| HOSP2CASH | HOSP DIST #2 GENERAL | N/A | N/A | N/A | N/A | | |
| SCH50BOND | SCHOOL DIST #50 BOND 2016 | N/A | N/A | N/A | N/A | | |
| SCH50CP | SCHOOL DIST #50 CAP PROJ | N/A | N/A | N/A | N/A | | |
| SCH50MO | SCHOOL DIST #50 EP & O | N/A | N/A | N/A | N/A | | |
| CONSERVE | CONSERVATION FUTURES | N/A | N/A | N/A | N/A | | |
| EMS1 | FIRE DIST #1 EMS | N/A | N/A | N/A | N/A | | |
| FD1 | FIRE DIST #1 GENERAL | N/A | N/A | N/A | N/A | | |
| PORTPT | PORT OF PT GENERAL | N/A | N/A | N/A | N/A | | |
| PORTPTIDD | PORT OF PT IDD 2019 | N/A | N/A | N/A | N/A | | |
| PUD1 | PUD #1 GENERAL | N/A | N/A | N/A | N/A | | |
| STATE | STATE SCHOOL PART 1 | N/A | N/A | N/A | N/A | | |
| STATE2 | STATE SCHOOL PART 2 | N/A | N/A | N/A | N/A | | |
| | Total Tax Rate: | N/A | | | | | |
| | | | | Taxes w/Current Exemptions: | N/A | | |
| | | | | Taxes w/o Exemptions: | N/A | | |
Improvement / Building
| Improvement #1: | Residential Bldg | State Code: | 11 | 1604.0 sqft | Value: | $322,892 |
| Bathrooms (#): | 2 (FULL) | Bathrooms (#): | 1 (HALF) | | Bedrooms (#): | 3 | Exterior Wall: | SI/ST | | Fireplace: | WD ST-GOOD | Floor Construction: | FRAME | | Foundation: | CONPR | Heating/Cooling: | ELBB | | Roof Cover: | COMP |   |   |
|
| | Type | Description | Class CD | Sub Class CD | Year Built | Area |
| | MA | Main Area | 3+ | 1S | 1995 | 1604.0 |
| | HCPOR | House Concrete Porch | 3 | * | 1995 | 24.0 |
| | HDECK | House Deck | 3 | * | 1995 | 408.0 |
| | GATT | House Attached Garage | 3 | 1S | 1995 | 484.0 |
| | ASPHD | Asphalt Drive | 3 | * | 1995 | 300.0 |
| | CONCD | Concrete Drive | 3 | * | 1995 | 200.0 |
Sketch
Property Image
Land
| 1 | 6045-1175L | Buildable Lots w/Terr View w/Access/Utilities Near | 0.0000 | 0.00 | 0.00 | 0.00 | 2.00 | $156,000 | $0 |
Roll Value History
| 2025 | N/A | N/A | N/A | N/A | N/A |
| 2024 | $280,044 | $157,500 | $0 | $437,544 | $150,004 |
| 2023 | $280,044 | $145,000 | $0 | $425,044 | $150,004 |
| 2022 | $280,043 | $140,000 | $0 | $420,043 | $150,508 |
| 2021 | $234,150 | $120,750 | $0 | $354,900 | $269,677 |
Deed and Sales History
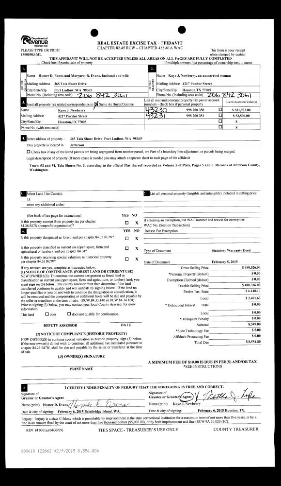
| 1 | 09/09/2015 | SWD | Statutory Warranty Deed | MARK A MERRYMAN | JULIE YERXA & GERALD CANOTE | | | $300,000.00 | 123965 | |
| 2 | 02/01/2011 | QCD | Quit Claim Deed | MERRYMAN, MARK ALLEN | MERRYMAN, MARK ALLEN/SANDRA AN | 0 | 0 | $0.00 | 115640 | 0 |
| 3 | 11/11/1999 | SWD | Statutory Warranty Deed | DUNCAN, JAMES/JEAN TRUST | MERRYMAN, MARK A | 0 | 0 | $147,500.00 | 88375 | 0 |
Payout Agreement
| No payout information available.. |