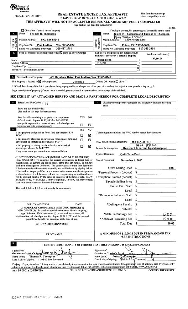
Property
Account |
| Property ID: | 43621 | Abbreviated Legal Description: | TIBBALS 1ST ADDITION BLK 45 LOTS 2,3 |
| Parcel # / Geo ID: | 998804502 | Agent Code: | |
| Type: | Real | | |
| Tax Area: | 0110 - C-50F1E1H2 | Land Use Code | 11 |
| Open Space: | N | DFL | N |
| Historic Property: | N | Remodel Property: | N |
| Multi-Family Redevelopment: | N | | |
| Township: | 31N | Section: | 34 |
| Range: | 1W |
Location |
| Address: | 922 43RD ST PORT TOWNSEND, WA 98368 | Mapsco: | 136/056 |
| Neighborhood: | HL TIBBALS 1ST, RILEYS ADD AND DUNCAN HILLTOP | Map ID: | |
| Neighborhood CD: | 6045 |
Owner |
| Name: | MELISSA SPEAR | Owner ID: | 109644 |
| Mailing Address: | 922 43RD ST PORT TOWNSEND, WA 98368-1537 | % Ownership: | 100.0000000000% |
| | | Exemptions: | |
Pay Tax Due
There is currently No Amount Due on this property.
Taxes and Assessment Details
Property Tax Information as of
10/24/2025
Click on "Statement Details" to expand or collapse a tax statement.
* Please enter a valid date ** Please enter a valid date *
Statement Details |
| | TOTAL: | $0.00 | $0.00 | $0.00 | $0.00 | $0.00 | $0.00 |
|
| | $0.00 | $0.00 | $0.00 | $0.00 | $0.00 | $0.00 |
Values
| (+) Improvement Homesite Value: | + | $0 | |
| (+) Improvement Non-Homesite Value: | + | $326,692 | |
| (+) Land Homesite Value: | + | $0 | |
| (+) Land Non-Homesite Value: | + | $261,000 | |
| (+) Curr Use (HS): | + | $0 | $0 |
| (+) Curr Use (NHS): | + | $0 | $0 |
| | | -------------------------- | |
| (=) Market Value: | = | $587,692 | |
| (–) Productivity Loss: | – | $0 | |
| | | -------------------------- | |
| (=) Subtotal: | = | $587,692 | |
| (+) Senior Appraised Value: | + | $0 | |
| (+) Non-Senior Appraised Value: | + | $587,692 | |
| | | -------------------------- | |
| (=) Total Appraised Value: | = | $587,692 | |
| (–) Senior Exemption Loss: | – | $0 | |
| (–) Exemption Loss: | – | $0 | |
| | | -------------------------- | |
| (=) Taxable Value: | = | $587,692 | |
Taxing Jurisdiction
| Owner: | MELISSA SPEAR | | |
| % Ownership: | 100.0000000000% | | |
| Total Value: | N/A | | |
| Tax Area: | 0110 - C-50F1E1H2 |
| CE | COUNTY CURRENT EXPENSE | N/A | N/A | N/A | N/A | | |
| CNTYDD | DEVELOPMENTAL DISABILITIES | N/A | N/A | N/A | N/A | | |
| CNTYVET | VETERANS RELIEF | N/A | N/A | N/A | N/A | | |
| MENTAL | MENTAL HEALTH | N/A | N/A | N/A | N/A | | |
| PTGEN | CITY OF PT GENERAL | N/A | N/A | N/A | N/A | | |
| PTLLL | CITY OF PT - LIBRARY LID LIFT | N/A | N/A | N/A | N/A | | |
| PTMVBOND | CITY OF PT MV BOND | N/A | N/A | N/A | N/A | | |
| HOSP2CASH | HOSP DIST #2 GENERAL | N/A | N/A | N/A | N/A | | |
| SCH50BOND | SCHOOL DIST #50 BOND 2016 | N/A | N/A | N/A | N/A | | |
| SCH50CP | SCHOOL DIST #50 CAP PROJ | N/A | N/A | N/A | N/A | | |
| SCH50MO | SCHOOL DIST #50 EP & O | N/A | N/A | N/A | N/A | | |
| CONSERVE | CONSERVATION FUTURES | N/A | N/A | N/A | N/A | | |
| EMS1 | FIRE DIST #1 EMS | N/A | N/A | N/A | N/A | | |
| FD1 | FIRE DIST #1 GENERAL | N/A | N/A | N/A | N/A | | |
| PORTPT | PORT OF PT GENERAL | N/A | N/A | N/A | N/A | | |
| PORTPTIDD | PORT OF PT IDD 2019 | N/A | N/A | N/A | N/A | | |
| PUD1 | PUD #1 GENERAL | N/A | N/A | N/A | N/A | | |
| STATE | STATE SCHOOL PART 1 | N/A | N/A | N/A | N/A | | |
| STATE2 | STATE SCHOOL PART 2 | N/A | N/A | N/A | N/A | | |
| | Total Tax Rate: | N/A | | | | | |
| | | | | Taxes w/Current Exemptions: | N/A | | |
| | | | | Taxes w/o Exemptions: | N/A | | |
Improvement / Building
| Improvement #1: | Residential Bldg | State Code: | 11 | 658.0 sqft | Value: | $326,692 |
| Bathrooms (#): | 1 (FULL) | Bedrooms (#): | 1 | | Exterior Wall: | SI/ST | Fireplace: | PROPS-GOOD | | Floor Construction: | CONCR | Foundation: | CONPR | | Heating/Cooling: | HPUMP | Roof Cover: | COMP |
|
| | Type | Description | Class CD | Sub Class CD | Year Built | Area |
| | MA | Main Area | 6- | 1S | 2018 | 658.0 |
| | GATT | House Attached Garage | 4 | 1S | 2018 | 392.0 |
| | HDECK | House Deck | 4 | * | 2018 | 279.0 |
| | CONCD | Concrete Drive | 4 | * | 2018 | 400.0 |
| | ASPHD | Asphalt Drive | 4 | * | 2018 | 400.0 |
| | SHED | Shed (Table Not Dep) | 4 | * | 2018 | 110.0 |
Sketch
Property Image
Land
| 1 | 6045-1173L | Typical 1 Lot Site w/Access and Utilities | 0.0000 | 0.00 | 0.00 | 0.00 | 2.00 | $261,000 | $0 |
Roll Value History
| 2025 | N/A | N/A | N/A | N/A | N/A |
| 2024 | $303,556 | $262,500 | $0 | $566,056 | $566,056 |
| 2023 | $294,862 | $145,000 | $0 | $439,862 | $439,862 |
| 2022 | $294,862 | $140,000 | $0 | $434,862 | $434,862 |
| 2021 | $250,050 | $120,750 | $0 | $370,800 | $370,800 |
Deed and Sales History
| 1 | 09/08/2023 | SWD | Statutory Warranty Deed | CYNTHIA L WYLDE TRUST | MELISSA SPEAR | | | $615,000.00 | 141546 | |
| 2 | 06/20/2023 | QCD | Quit Claim Deed | CYNTHIA R CASSLEMAN | CYNTHIA L WYLDE TRUST | | | | 141111 | |
| 3 | 05/12/2021 | SWD | Statutory Warranty Deed | SARAH E MCMONIGLE | CYNTHIA R CASSLEMAN | | | $560,000.00 | 136734 | |
| 4 | 04/24/2018 | SWD | Statutory Warranty Deed | JONATHAN BLOCK | SARAH E MCMONIGLE | | | $55,000.00 | 130040 | |
| 5 | 07/05/2017 | SWD | Statutory Warranty Deed | JOHN & DANELLE GREER | JONATHAN BLOCK | | | $55,000.00 | 128096 | |
| 6 | 06/13/2016 | SWD | Statutory Warranty Deed | CROWDER FAMILY TRUST | JOHN & DANELLE GREER | | | $44,000.00 | 125683 | |
| 7 | 01/22/2014 | QCD | Quit Claim Deed | FRED M CROWDER | CROWDER FAMILY TRUST | | | | 120676 | |
Payout Agreement
| No payout information available.. |