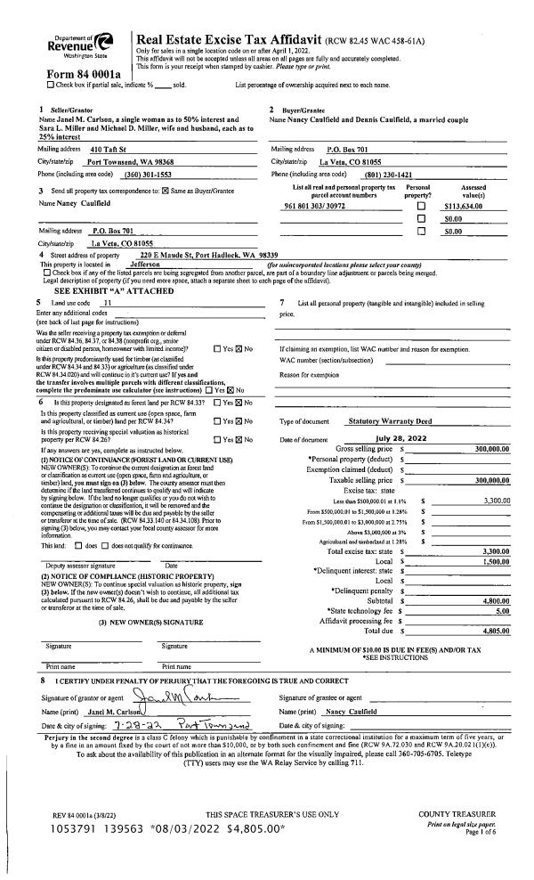
Property
Account |
| Property ID: | 43680 | Abbreviated Legal Description: | TIBBALS LAKE PARK BLKS 31 & 32 LOTS 1 THRU 10 OF EACH BLK TGTH W/ALLEYS,FERN(ALL),W1/2 CEDAR,E1/2 MOSS,N1/2 COOK & S1/2 DENISON STS ADJ BND THRU SUB2024-00009 |
| Parcel # / Geo ID: | 999003201 | Agent Code: | |
| Type: | Real | | |
| Tax Area: | 0111 - 1-50F1E1H2L1 | Land Use Code | 11 |
| Open Space: | N | DFL | N |
| Historic Property: | N | Remodel Property: | N |
| Multi-Family Redevelopment: | N | | |
| Township: | 30N | Section: | 5 |
| Range: | 1W |
Location |
| Address: | 254 N JACOB MILLER RD PORT TOWNSEND, WA 98368 | Mapsco: | 066/071 |
| Neighborhood: | TIBBALS PARK | Map ID: | |
| Neighborhood CD: | 5320 |
Owner |
| Name: | ROBERT S CHISICK SR | Owner ID: | 108214 |
| Mailing Address: | 254 N JACOB MILLER RD PORT TOWNSEND, WA 98368 | % Ownership: | 100.0000000000% |
| | | Exemptions: | |
Pay Tax Due
There is currently No Amount Due on this property.
Taxes and Assessment Details
Property Tax Information as of
10/24/2025
Click on "Statement Details" to expand or collapse a tax statement.
* Please enter a valid date ** Please enter a valid date *
Statement Details |
| | TOTAL: | $0.00 | $0.00 | $0.00 | $0.00 | $0.00 | $0.00 |
|
| | $0.00 | $0.00 | $0.00 | $0.00 | $0.00 | $0.00 |
Values
| (+) Improvement Homesite Value: | + | $0 | |
| (+) Improvement Non-Homesite Value: | + | $56,602 | |
| (+) Land Homesite Value: | + | $0 | |
| (+) Land Non-Homesite Value: | + | $229,625 | |
| (+) Curr Use (HS): | + | $0 | $0 |
| (+) Curr Use (NHS): | + | $0 | $0 |
| | | -------------------------- | |
| (=) Market Value: | = | $286,227 | |
| (–) Productivity Loss: | – | $0 | |
| | | -------------------------- | |
| (=) Subtotal: | = | $286,227 | |
| (+) Senior Appraised Value: | + | $0 | |
| (+) Non-Senior Appraised Value: | + | $286,227 | |
| | | -------------------------- | |
| (=) Total Appraised Value: | = | $286,227 | |
| (–) Senior Exemption Loss: | – | $0 | |
| (–) Exemption Loss: | – | $0 | |
| | | -------------------------- | |
| (=) Taxable Value: | = | $286,227 | |
Taxing Jurisdiction
| Owner: | ROBERT S CHISICK SR | | |
| % Ownership: | 100.0000000000% | | |
| Total Value: | N/A | | |
| Tax Area: | 0111 - 1-50F1E1H2L1 |
| CE | COUNTY CURRENT EXPENSE | N/A | N/A | N/A | N/A | | |
| CNTYDD | DEVELOPMENTAL DISABILITIES | N/A | N/A | N/A | N/A | | |
| CNTYVET | VETERANS RELIEF | N/A | N/A | N/A | N/A | | |
| MENTAL | MENTAL HEALTH | N/A | N/A | N/A | N/A | | |
| ROADS | COUNTY ROADS | N/A | N/A | N/A | N/A | | |
| ROADSCU | COUNTY ROADS TO CUR EXP | N/A | N/A | N/A | N/A | | |
| HOSP2CASH | HOSP DIST #2 GENERAL | N/A | N/A | N/A | N/A | | |
| SCH50BOND | SCHOOL DIST #50 BOND 2016 | N/A | N/A | N/A | N/A | | |
| SCH50CP | SCHOOL DIST #50 CAP PROJ | N/A | N/A | N/A | N/A | | |
| SCH50MO | SCHOOL DIST #50 EP & O | N/A | N/A | N/A | N/A | | |
| CONSERVE | CONSERVATION FUTURES | N/A | N/A | N/A | N/A | | |
| EMS1 | FIRE DIST #1 EMS | N/A | N/A | N/A | N/A | | |
| FD1 | FIRE DIST #1 GENERAL | N/A | N/A | N/A | N/A | | |
| LIB1 | LIBRARY DIST #1 GENERAL | N/A | N/A | N/A | N/A | | |
| PORTPT | PORT OF PT GENERAL | N/A | N/A | N/A | N/A | | |
| PORTPTIDD | PORT OF PT IDD 2019 | N/A | N/A | N/A | N/A | | |
| PUD1 | PUD #1 GENERAL | N/A | N/A | N/A | N/A | | |
| STATE | STATE SCHOOL PART 1 | N/A | N/A | N/A | N/A | | |
| STATE2 | STATE SCHOOL PART 2 | N/A | N/A | N/A | N/A | | |
| | Total Tax Rate: | N/A | | | | | |
| | | | | Taxes w/Current Exemptions: | N/A | | |
| | | | | Taxes w/o Exemptions: | N/A | | |
Improvement / Building
| Improvement #1: | Residential Bldg | State Code: | 11 | 864.0 sqft | Value: | $56,602 |
| Bathrooms (#): | 1 (HALF) | Bedrooms (#): | 1 | | Exterior Wall: | SI/ST | Floor Construction: | FRAME | | Foundation: | PO&BL | Heating/Cooling: | WD/NO | | Roof Cover: | METAL |   |   |
|
| | Type | Description | Class CD | Sub Class CD | Year Built | Area |
| | MA | Main Area | 2 | 15SF | 1994 | 864.0 |
| | CARPTF | Carport W/Floor | 2 | * | 1994 | 576.0 |
| | CARPT | Carport (Table Not Dep) | 1 | * | 1994 | 900.0 |
| | HLOFT | House Loft | 2 | * | 1994 | 432.0 |
Sketch
Property Image
Land
| 1 | 5320-1285S | 2 Lot Bldg Site Tibbals Park | 1.0000 | 43560.00 | 0.00 | 0.00 | 1.00 | $45,375 | $0 |
| 2 | 5320-1183L | 3rd and 4th Lot Bldg Site Tibbals | 0.0000 | 0.00 | 0.00 | 0.00 | 2.00 | $29,700 | $0 |
| 3 | 5320-1186L | 5th Lot Bldg Site Tibbals Park | 0.0000 | 0.00 | 0.00 | 0.00 | 1.00 | $11,550 | $0 |
| 4 | 5320-1189L | XS Lots over 5 Tibbals Park | 0.0000 | 0.00 | 0.00 | 0.00 | 26.00 | $143,000 | $0 |
Roll Value History
| 2025 | N/A | N/A | N/A | N/A | N/A |
| 2024 | $56,602 | $229,625 | $0 | $286,227 | $286,227 |
| 2023 | $38,881 | $122,063 | $0 | $160,944 | $160,944 |
| 2022 | $35,346 | $116,250 | $0 | $151,596 | $151,596 |
| 2021 | $26,777 | $98,465 | $0 | $125,242 | $125,242 |
Deed and Sales History
| 1 | 04/08/2021 | LOP | Lack of Probate | | ROBERT S CHISICK SR | | | | 140375 | |
| 2 | 04/08/2021 | LOP | Lack of Probate | | ROBERT S CHISICK SR | | | | 136465 | |
| 3 | 05/13/2011 | QCD | Quit Claim Deed | CHISICK II, ROBERT S | CHISICK SR, ROBERT/JACQUELINE | | | $0.00 | 115986 | 0 |
| 4 | 06/07/1995 | QCD | Quit Claim Deed | CHISICK, ROBERT S/JACQUEL | CHISICK,ROBERT/II & MARGUERITE | 0 | 0 | $0.00 | 77286 | 0 |
| 5 | 03/02/1992 | SWD | Statutory Warranty Deed | JUNG, PAUL P | GEORGE, THOMAS W/SPAETH, SARAH | 0 | 0 | $0.00 | 67844 | 0 |
Payout Agreement
| No payout information available.. |