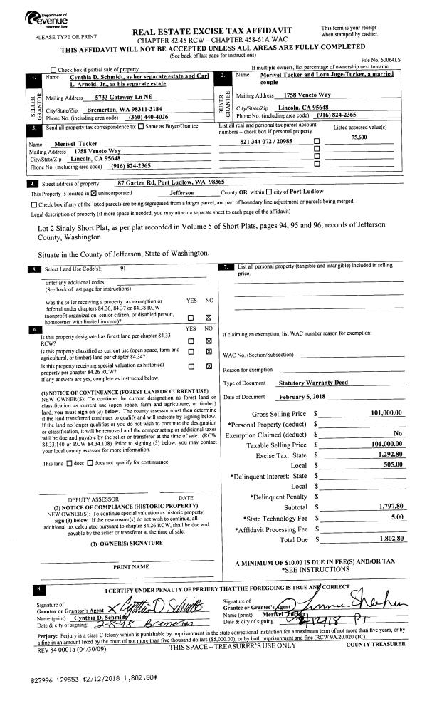
Property
Account |
| Property ID: | 43702 | Abbreviated Legal Description: | TIBBALS LAKE PARK BLK 47 LOTS 1 THRU 3 |
| Parcel # / Geo ID: | 999004702 | Agent Code: | |
| Type: | Real | | |
| Tax Area: | 0111 - 1-50F1E1H2L1 | Land Use Code | 11 |
| Open Space: | N | DFL | N |
| Historic Property: | N | Remodel Property: | N |
| Multi-Family Redevelopment: | N | | |
| Township: | 31N | Section: | 32 |
| Range: | 1W |
Location |
| Address: | 73 MAHALO WAY PORT TOWNSEND, WA 98368 | Mapsco: | 067/036 |
| Neighborhood: | TIBBALS PARK | Map ID: | |
| Neighborhood CD: | 5320 |
Owner |
| Name: | PAUL FERRIZ | Owner ID: | 15584 |
| Mailing Address: | 73 MAHALO WY PORT TOWNSEND, WA 98368 | % Ownership: | 100.0000000000% |
| | | Exemptions: | SNR/DSBL |
Pay Tax Due
There is currently No Amount Due on this property.
Taxes and Assessment Details
Property Tax Information as of
10/24/2025
Click on "Statement Details" to expand or collapse a tax statement.
* Please enter a valid date ** Please enter a valid date *
Statement Details |
| | TOTAL: | $0.00 | $0.00 | $0.00 | $0.00 | $0.00 | $0.00 |
|
| | $0.00 | $0.00 | $0.00 | $0.00 | $0.00 | $0.00 |
Values
| (+) Improvement Homesite Value: | + | $32,199 | |
| (+) Improvement Non-Homesite Value: | + | $0 | |
| (+) Land Homesite Value: | + | $54,080 | |
| (+) Land Non-Homesite Value: | + | $0 | |
| (+) Curr Use (HS): | + | $0 | $0 |
| (+) Curr Use (NHS): | + | $0 | $0 |
| | | -------------------------- | |
| (=) Market Value: | = | $86,279 | |
| (–) Productivity Loss: | – | $0 | |
| | | -------------------------- | |
| (=) Subtotal: | = | $86,279 | |
| (+) Senior Appraised Value: | + | $54,390 | |
| (+) Non-Senior Appraised Value: | + | $0 | |
| | | -------------------------- | |
| (=) Total Appraised Value: | = | $54,390 | |
| (–) Senior Exemption Loss: | – | $54,390 | |
| (–) Exemption Loss: | – | $0 | |
| | | -------------------------- | |
| (=) Taxable Value: | = | $0 | |
Taxing Jurisdiction
| Owner: | PAUL FERRIZ | | |
| % Ownership: | 100.0000000000% | | |
| Total Value: | N/A | | |
| Tax Area: | 0111 - 1-50F1E1H2L1 |
| CE | COUNTY CURRENT EXPENSE | N/A | N/A | N/A | N/A | | |
| CNTYDD | DEVELOPMENTAL DISABILITIES | N/A | N/A | N/A | N/A | | |
| CNTYVET | VETERANS RELIEF | N/A | N/A | N/A | N/A | | |
| MENTAL | MENTAL HEALTH | N/A | N/A | N/A | N/A | | |
| ROADS | COUNTY ROADS | N/A | N/A | N/A | N/A | | |
| ROADSCU | COUNTY ROADS TO CUR EXP | N/A | N/A | N/A | N/A | | |
| HOSP2CASH | HOSP DIST #2 GENERAL | N/A | N/A | N/A | N/A | | |
| SCH50BOND | SCHOOL DIST #50 BOND 2016 | N/A | N/A | N/A | N/A | | |
| SCH50CP | SCHOOL DIST #50 CAP PROJ | N/A | N/A | N/A | N/A | | |
| SCH50MO | SCHOOL DIST #50 EP & O | N/A | N/A | N/A | N/A | | |
| CONSERVE | CONSERVATION FUTURES | N/A | N/A | N/A | N/A | | |
| EMS1 | FIRE DIST #1 EMS | N/A | N/A | N/A | N/A | | |
| FD1 | FIRE DIST #1 GENERAL | N/A | N/A | N/A | N/A | | |
| LIB1 | LIBRARY DIST #1 GENERAL | N/A | N/A | N/A | N/A | | |
| PORTPT | PORT OF PT GENERAL | N/A | N/A | N/A | N/A | | |
| PORTPTIDD | PORT OF PT IDD 2019 | N/A | N/A | N/A | N/A | | |
| PUD1 | PUD #1 GENERAL | N/A | N/A | N/A | N/A | | |
| STATE | STATE SCHOOL PART 1 | N/A | N/A | N/A | N/A | | |
| STATE2 | STATE SCHOOL PART 2 | N/A | N/A | N/A | N/A | | |
| | Total Tax Rate: | N/A | | | | | |
| | | | | Taxes w/Current Exemptions: | N/A | | |
| | | | | Taxes w/o Exemptions: | N/A | | |
Improvement / Building
| Improvement #1: | Residential Bldg | State Code: | 11M | 270.0 sqft | Value: | $32,199 |
| Exterior Wall: | PL/T1 | Floor Construction: | FRAME | | Foundation: | PO&BL | Roof Cover: | METAL |
|
| | Type | Description | Class CD | Sub Class CD | Year Built | Area |
| | MA | Main Area | 2+ | MSG | 2012 | 270.0 |
| | MDECK | MH Deck | 2 | * | 2012 | 391.0 |
| | MWPOR | MH Wood Porch | 2 | * | 2012 | 144.0 |
| | SHED | Shed (Table Not Dep) | 4 | * | 2012 | 323.0 |
| | CARPT | Carport (Table Not Dep) | 2 | * | 2012 | 180.0 |
Sketch
Property Image
Land
| 1 | 5320-1186L | 5th Lot Bldg Site Tibbals Park | 0.0000 | 0.00 | 0.00 | 0.00 | 1.00 | $10,973 | $0 |
| 2 | 5320-1285S | 2 Lot Bldg Site Tibbals Park | 0.0000 | 0.00 | 0.00 | 0.00 | 1.00 | $43,107 | $0 |
Roll Value History
| 2025 | N/A | N/A | N/A | N/A | N/A |
| 2024 | $32,199 | $54,080 | $0 | $86,279 | $0 |
| 2023 | $31,343 | $51,621 | $0 | $82,964 | $0 |
| 2022 | $28,494 | $49,163 | $0 | $77,657 | $0 |
| 2021 | $21,586 | $39,226 | $0 | $60,812 | $0 |
Deed and Sales History
| 1 | 11/25/2003 | SWD | Statutory Warranty Deed | HOWES, TERRY J/CHARLOTTE | FERRIZ, PAUL | 0 | 0 | $0.00 | 99448 | 0 |
Payout Agreement
| No payout information available.. |