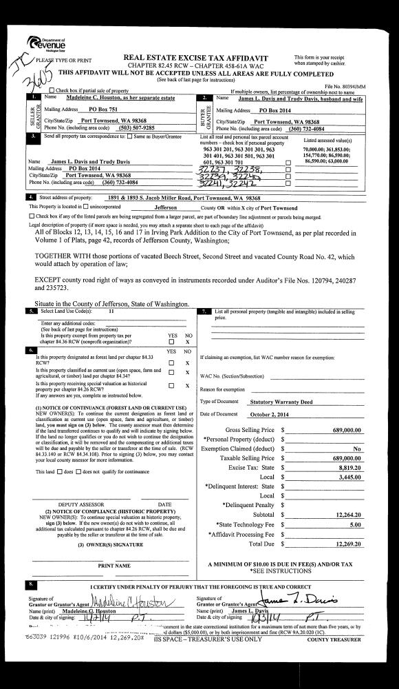
Property
Account |
| Property ID: | 43706 | Abbreviated Legal Description: | TIBBALS LAKE PARK BLK 50 LOTS 1 THRU 5 |
| Parcel # / Geo ID: | 999005001 | Agent Code: | |
| Type: | Real | | |
| Tax Area: | 0111 - 1-50F1E1H2L1 | Land Use Code | 19 |
| Open Space: | N | DFL | N |
| Historic Property: | N | Remodel Property: | N |
| Multi-Family Redevelopment: | N | | |
| Township: | 31N | Section: | 33 |
| Range: | 1W |
Location |
| Address: | 237 ELMIRA ST PORT TOWNSEND, WA 98368 | Mapsco: | 067/044 |
| Neighborhood: | TIBBALS PARK | Map ID: | |
| Neighborhood CD: | 5320 |
Owner |
| Name: | BRENDON PISKULA | Owner ID: | 24884 |
| Mailing Address: | 239 ELMIRA ST PORT TOWNSEND, WA 98368-8832 | % Ownership: | 100.0000000000% |
| | | Exemptions: | |
Pay Tax Due
There is currently No Amount Due on this property.
Taxes and Assessment Details
Property Tax Information as of
10/24/2025
Click on "Statement Details" to expand or collapse a tax statement.
* Please enter a valid date ** Please enter a valid date *
Statement Details |
| | TOTAL: | $0.00 | $0.00 | $0.00 | $0.00 | $0.00 | $0.00 |
|
| | $0.00 | $0.00 | $0.00 | $0.00 | $0.00 | $0.00 |
Values
| (+) Improvement Homesite Value: | + | $0 | |
| (+) Improvement Non-Homesite Value: | + | $46,637 | |
| (+) Land Homesite Value: | + | $0 | |
| (+) Land Non-Homesite Value: | + | $55,275 | |
| (+) Curr Use (HS): | + | $0 | $0 |
| (+) Curr Use (NHS): | + | $0 | $0 |
| | | -------------------------- | |
| (=) Market Value: | = | $101,912 | |
| (–) Productivity Loss: | – | $0 | |
| | | -------------------------- | |
| (=) Subtotal: | = | $101,912 | |
| (+) Senior Appraised Value: | + | $0 | |
| (+) Non-Senior Appraised Value: | + | $101,912 | |
| | | -------------------------- | |
| (=) Total Appraised Value: | = | $101,912 | |
| (–) Senior Exemption Loss: | – | $0 | |
| (–) Exemption Loss: | – | $0 | |
| | | -------------------------- | |
| (=) Taxable Value: | = | $101,912 | |
Taxing Jurisdiction
| Owner: | BRENDON PISKULA | | |
| % Ownership: | 100.0000000000% | | |
| Total Value: | N/A | | |
| Tax Area: | 0111 - 1-50F1E1H2L1 |
| CE | COUNTY CURRENT EXPENSE | N/A | N/A | N/A | N/A | | |
| CNTYDD | DEVELOPMENTAL DISABILITIES | N/A | N/A | N/A | N/A | | |
| CNTYVET | VETERANS RELIEF | N/A | N/A | N/A | N/A | | |
| MENTAL | MENTAL HEALTH | N/A | N/A | N/A | N/A | | |
| ROADS | COUNTY ROADS | N/A | N/A | N/A | N/A | | |
| ROADSCU | COUNTY ROADS TO CUR EXP | N/A | N/A | N/A | N/A | | |
| HOSP2CASH | HOSP DIST #2 GENERAL | N/A | N/A | N/A | N/A | | |
| SCH50BOND | SCHOOL DIST #50 BOND 2016 | N/A | N/A | N/A | N/A | | |
| SCH50CP | SCHOOL DIST #50 CAP PROJ | N/A | N/A | N/A | N/A | | |
| SCH50MO | SCHOOL DIST #50 EP & O | N/A | N/A | N/A | N/A | | |
| CONSERVE | CONSERVATION FUTURES | N/A | N/A | N/A | N/A | | |
| EMS1 | FIRE DIST #1 EMS | N/A | N/A | N/A | N/A | | |
| FD1 | FIRE DIST #1 GENERAL | N/A | N/A | N/A | N/A | | |
| LIB1 | LIBRARY DIST #1 GENERAL | N/A | N/A | N/A | N/A | | |
| PORTPT | PORT OF PT GENERAL | N/A | N/A | N/A | N/A | | |
| PORTPTIDD | PORT OF PT IDD 2019 | N/A | N/A | N/A | N/A | | |
| PUD1 | PUD #1 GENERAL | N/A | N/A | N/A | N/A | | |
| STATE | STATE SCHOOL PART 1 | N/A | N/A | N/A | N/A | | |
| STATE2 | STATE SCHOOL PART 2 | N/A | N/A | N/A | N/A | | |
| | Total Tax Rate: | N/A | | | | | |
| | | | | Taxes w/Current Exemptions: | N/A | | |
| | | | | Taxes w/o Exemptions: | N/A | | |
Improvement / Building
| Improvement #1: | Site Improvements | State Code: | 91 | 0.0 sqft | Value: | $6,506 |
| | Type | Description | Class CD | Sub Class CD | Year Built | Area |
| | SHED | Shed (Table Not Dep) | 2 | * | 2012 | 196.0 |
| | SHED | Shed (Table Not Dep) | 2 | * | 2012 | 112.0 |
| | SHED | Shed (Table Not Dep) | 2 | * | 2012 | 48.0 |
| | SHED | Shed (Table Not Dep) | 2 | * | 2012 | 48.0 |
| | SHED | Shed (Table Not Dep) | 2 | * | 2012 | 200.0 |
| | CDECK | Cabin Deck | 1 | * | 2012 | 96.0 |
| Improvement #2: | Residential Bldg | State Code: | 19 | 160.0 sqft | Value: | $12,605 |
| Exterior Wall: | PL/T1 | Fireplace: | WD ST-AVG | | Floor Construction: | FRAME | Foundation: | PO&BL | | Heating/Cooling: | WD/NO | Interior Finish: | FIN | | Roof Cover: | COMP |   |   |
|
| | Type | Description | Class CD | Sub Class CD | Year Built | Area |
| | MA | Main Area | 2 | C15F | 2012 | 160.0 |
| | CDECK | Cabin Deck | 2 | * | 2012 | 196.0 |
| Improvement #3: | Residential Bldg | State Code: | 19 | 256.0 sqft | Value: | $27,526 |
| Exterior Wall: | PL/T1 | Floor Construction: | FRAME | | Foundation: | PO&BL | Interior Finish: | FIN | | Roof Cover: | ROLL |   |   |
|
| | Type | Description | Class CD | Sub Class CD | Year Built | Area |
| | MA | Main Area | 2 | C15F | 2012 | 256.0 |
| | CRPO | Cabin Roof Porch | 2 | * | 2012 | 480.0 |
| | CRPO | Cabin Roof Porch | 2 | * | 2012 | 672.0 |
Sketch
Property Image
Land
| 1 | 5320-1285S | 2 Lot Bldg Site Tibbals Park | 0.0000 | 0.00 | 0.00 | 0.00 | 1.00 | $45,375 | $0 |
| 2 | 5320-1183L | 3rd and 4th Lot Bldg Site Tibbals | 0.0000 | 0.00 | 0.00 | 0.00 | 1.00 | $9,900 | $0 |
Roll Value History
| 2025 | N/A | N/A | N/A | N/A | N/A |
| 2024 | $46,637 | $55,275 | $0 | $101,912 | $101,912 |
| 2023 | $44,610 | $52,763 | $0 | $97,373 | $97,373 |
| 2022 | $40,554 | $50,250 | $0 | $90,804 | $90,804 |
| 2021 | $31,553 | $40,233 | $0 | $71,786 | $71,786 |
Deed and Sales History
| 1 | 10/12/2015 | SWD | Statutory Warranty Deed | DAVID K MILLER | BRENDON PISKULA | | | $55,000.00 | 124358 | |
| 2 | 09/01/1999 | SWD | Statutory Warranty Deed | TUTTLE, ROBERT | JOHNSTON, WADE R/LISA A | 0 | 0 | $4,000.00 | 87803 | 0 |
| 3 | 09/01/1999 | REC | Real Estate Contract | JOHNSTON, WADE R/LISA A | MILLER, DAVID K | 0 | 0 | $12,500.00 | 87804 | 0 |
Payout Agreement
| No payout information available.. |