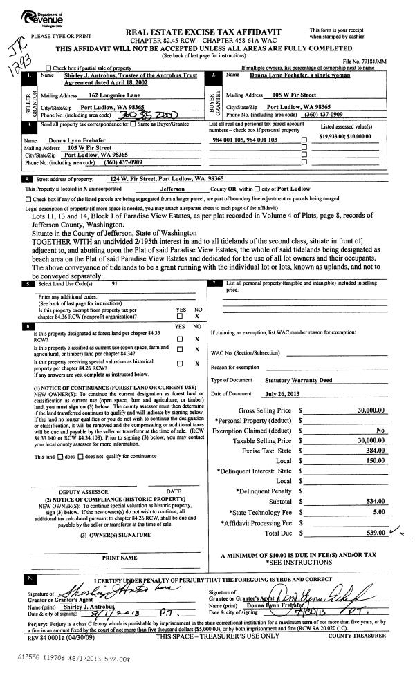
Property
Account |
| Property ID: | 43745 | Abbreviated Legal Description: | TIBBALS LAKE PARK BLK 77 TAX 93 BND TGTH THRU BLA#112160 |
| Parcel # / Geo ID: | 999007705 | Agent Code: | |
| Type: | Real | | |
| Tax Area: | 0111 - 1-50F1E1H2L1 | Land Use Code | 11 |
| Open Space: | N | DFL | N |
| Historic Property: | N | Remodel Property: | N |
| Multi-Family Redevelopment: | N | | |
| Township: | 30N | Section: | 4 |
| Range: | 1W |
Location |
| Address: | 552 COOK AVE EXT PORT TOWNSEND, WA 98368 | Mapsco: | 068/027 |
| Neighborhood: | TIBBALS PARK | Map ID: | |
| Neighborhood CD: | 5320 |
Owner |
| Name: | LAWRENCE M FISHER & WENDY C FELTHAM | Owner ID: | 92330 |
| Mailing Address: | 552 COOK AVENUE EXT PORT TOWNSEND, WA 98368-9271 | % Ownership: | 100.0000000000% |
| | | Exemptions: | |
Pay Tax Due
There is currently No Amount Due on this property.
Taxes and Assessment Details
Property Tax Information as of
10/24/2025
Click on "Statement Details" to expand or collapse a tax statement.
* Please enter a valid date ** Please enter a valid date *
Statement Details |
| | TOTAL: | $0.00 | $0.00 | $0.00 | $0.00 | $0.00 | $0.00 |
|
| | $0.00 | $0.00 | $0.00 | $0.00 | $0.00 | $0.00 |
Values
| (+) Improvement Homesite Value: | + | $0 | |
| (+) Improvement Non-Homesite Value: | + | $695,658 | |
| (+) Land Homesite Value: | + | $0 | |
| (+) Land Non-Homesite Value: | + | $121,814 | |
| (+) Curr Use (HS): | + | $0 | $0 |
| (+) Curr Use (NHS): | + | $0 | $0 |
| | | -------------------------- | |
| (=) Market Value: | = | $817,472 | |
| (–) Productivity Loss: | – | $0 | |
| | | -------------------------- | |
| (=) Subtotal: | = | $817,472 | |
| (+) Senior Appraised Value: | + | $0 | |
| (+) Non-Senior Appraised Value: | + | $817,472 | |
| | | -------------------------- | |
| (=) Total Appraised Value: | = | $817,472 | |
| (–) Senior Exemption Loss: | – | $0 | |
| (–) Exemption Loss: | – | $0 | |
| | | -------------------------- | |
| (=) Taxable Value: | = | $817,472 | |
Taxing Jurisdiction
| Owner: | LAWRENCE M FISHER & WENDY C FELTHAM | | |
| % Ownership: | 100.0000000000% | | |
| Total Value: | N/A | | |
| Tax Area: | 0111 - 1-50F1E1H2L1 |
| CE | COUNTY CURRENT EXPENSE | N/A | N/A | N/A | N/A | | |
| CNTYDD | DEVELOPMENTAL DISABILITIES | N/A | N/A | N/A | N/A | | |
| CNTYVET | VETERANS RELIEF | N/A | N/A | N/A | N/A | | |
| MENTAL | MENTAL HEALTH | N/A | N/A | N/A | N/A | | |
| ROADS | COUNTY ROADS | N/A | N/A | N/A | N/A | | |
| ROADSCU | COUNTY ROADS TO CUR EXP | N/A | N/A | N/A | N/A | | |
| HOSP2CASH | HOSP DIST #2 GENERAL | N/A | N/A | N/A | N/A | | |
| SCH50BOND | SCHOOL DIST #50 BOND 2016 | N/A | N/A | N/A | N/A | | |
| SCH50CP | SCHOOL DIST #50 CAP PROJ | N/A | N/A | N/A | N/A | | |
| SCH50MO | SCHOOL DIST #50 EP & O | N/A | N/A | N/A | N/A | | |
| CONSERVE | CONSERVATION FUTURES | N/A | N/A | N/A | N/A | | |
| EMS1 | FIRE DIST #1 EMS | N/A | N/A | N/A | N/A | | |
| FD1 | FIRE DIST #1 GENERAL | N/A | N/A | N/A | N/A | | |
| LIB1 | LIBRARY DIST #1 GENERAL | N/A | N/A | N/A | N/A | | |
| PORTPT | PORT OF PT GENERAL | N/A | N/A | N/A | N/A | | |
| PORTPTIDD | PORT OF PT IDD 2019 | N/A | N/A | N/A | N/A | | |
| PUD1 | PUD #1 GENERAL | N/A | N/A | N/A | N/A | | |
| STATE | STATE SCHOOL PART 1 | N/A | N/A | N/A | N/A | | |
| STATE2 | STATE SCHOOL PART 2 | N/A | N/A | N/A | N/A | | |
| | Total Tax Rate: | N/A | | | | | |
| | | | | Taxes w/Current Exemptions: | N/A | | |
| | | | | Taxes w/o Exemptions: | N/A | | |
Improvement / Building
| Improvement #1: | Residential Bldg | State Code: | 11 | 2246.0 sqft | Value: | $695,658 |
| Bathrooms (#): | 3 (FULL) | Bedrooms (#): | 3 | | Exterior Wall: | SI/ST | Floor Construction: | FRAME | | Foundation: | CONPR | Heating/Cooling: | ELBB | | Roof Cover: | COMP |   |   |
|
| | Type | Description | Class CD | Sub Class CD | Year Built | Area |
| | MA | Main Area | 5+ | 15SF | 2013 | 1766.0 |
| | MA2 | Second Floor Main Area | 5+ | 15SF | 2013 | 480.0 |
| | GBLTIN | Builtin Garage | 5 | 15SF | 2013 | 672.0 |
| | HWPOR | House Wood Porch | 5 | 15SF | 2013 | 42.0 |
| | HDECK | House Deck | 5 | 15SF | 2013 | 716.0 |
| | ASPHD | Asphalt Drive | 5 | * | 2017 | 1500.0 |
Sketch
Property Image
Land
| 1 | 5320-1285S | 2 Lot Bldg Site Tibbals Park | 0.0000 | 0.00 | 0.00 | 0.00 | 1.00 | $93,500 | $0 |
| 2 | 5320-1183L | 3rd and 4th Lot Bldg Site Tibbals | 0.0000 | 0.00 | 0.00 | 0.00 | 1.00 | $28,314 | $0 |
Roll Value History
| 2025 | N/A | N/A | N/A | N/A | N/A |
| 2024 | $695,658 | $121,814 | $0 | $817,472 | $817,472 |
| 2023 | $597,245 | $111,027 | $0 | $708,272 | $708,272 |
| 2022 | $542,950 | $100,740 | $0 | $643,690 | $643,690 |
| 2021 | $411,325 | $83,074 | $0 | $494,399 | $494,399 |
Deed and Sales History
| 1 | 08/12/2014 | SWD | Statutory Warranty Deed | NEIL M CAVETTE JR | LAWRENCE M FISHER & WENDY C FELTHAM | | | $402,500.00 | 121712 | |
| 2 | 12/17/1998 | SWD | Statutory Warranty Deed | HERMANSON, JAMES S/DOROTH | CAVETTE, NEIL/KATHLEEN C | 0 | 0 | $0.00 | 86459 | 0 |
| 3 | 12/17/1998 | SWD | Statutory Warranty Deed | HERMANSON, JAMES S/DOROTH | CAVETTE, NEIL/KATHLEEN C | 0 | 0 | $35,000.00 | 85986 | 0 |
|   | |
Payout Agreement
| No payout information available.. |