Property
Account |
| Property ID: | 43775 | Abbreviated Legal Description: | TOWNE POINT LOT 20 (REVISED) |
| Parcel # / Geo ID: | 999100020 | Agent Code: | |
| Type: | Real | | |
| Tax Area: | 0110 - C-50F1E1H2 | Land Use Code | 11 |
| Open Space: | N | DFL | N |
| Historic Property: | N | Remodel Property: | N |
| Multi-Family Redevelopment: | N | | |
| Township: | 30N | Section: | 10 |
| Range: | 1W |
Location |
| Address: | 2016 QUEEN ANNE PL PORT TOWNSEND, WA 98368 | Mapsco: | 138/016 |
| Neighborhood: | TOWNE POINT I & TOWNE POINT II | Map ID: | |
| Neighborhood CD: | 6150 |
Owner |
| Name: | SHAWN N LAMMERS | Owner ID: | 94482 |
| Mailing Address: | 2016 QUEEN ANNE PLACE PORT TOWNSEND, WA 98368-7305 | % Ownership: | 100.0000000000% |
| | | Exemptions: | |
Pay Tax Due
There is currently No Amount Due on this property.
Taxes and Assessment Details
Property Tax Information as of
10/24/2025
Click on "Statement Details" to expand or collapse a tax statement.
* Please enter a valid date ** Please enter a valid date *
Statement Details |
| | TOTAL: | $0.00 | $0.00 | $0.00 | $0.00 | $0.00 | $0.00 |
|
| | $0.00 | $0.00 | $0.00 | $0.00 | $0.00 | $0.00 |
Values
| (+) Improvement Homesite Value: | + | $0 | |
| (+) Improvement Non-Homesite Value: | + | $114,522 | |
| (+) Land Homesite Value: | + | $0 | |
| (+) Land Non-Homesite Value: | + | $120,000 | |
| (+) Curr Use (HS): | + | $0 | $0 |
| (+) Curr Use (NHS): | + | $0 | $0 |
| | | -------------------------- | |
| (=) Market Value: | = | $234,522 | |
| (–) Productivity Loss: | – | $0 | |
| | | -------------------------- | |
| (=) Subtotal: | = | $234,522 | |
| (+) Senior Appraised Value: | + | $0 | |
| (+) Non-Senior Appraised Value: | + | $234,522 | |
| | | -------------------------- | |
| (=) Total Appraised Value: | = | $234,522 | |
| (–) Senior Exemption Loss: | – | $0 | |
| (–) Exemption Loss: | – | $0 | |
| | | -------------------------- | |
| (=) Taxable Value: | = | $234,522 | |
Taxing Jurisdiction
| Owner: | SHAWN N LAMMERS | | |
| % Ownership: | 100.0000000000% | | |
| Total Value: | N/A | | |
| Tax Area: | 0110 - C-50F1E1H2 |
| CE | COUNTY CURRENT EXPENSE | N/A | N/A | N/A | N/A | | |
| CNTYDD | DEVELOPMENTAL DISABILITIES | N/A | N/A | N/A | N/A | | |
| CNTYVET | VETERANS RELIEF | N/A | N/A | N/A | N/A | | |
| MENTAL | MENTAL HEALTH | N/A | N/A | N/A | N/A | | |
| PTGEN | CITY OF PT GENERAL | N/A | N/A | N/A | N/A | | |
| PTLLL | CITY OF PT - LIBRARY LID LIFT | N/A | N/A | N/A | N/A | | |
| PTMVBOND | CITY OF PT MV BOND | N/A | N/A | N/A | N/A | | |
| HOSP2CASH | HOSP DIST #2 GENERAL | N/A | N/A | N/A | N/A | | |
| SCH50BOND | SCHOOL DIST #50 BOND 2016 | N/A | N/A | N/A | N/A | | |
| SCH50CP | SCHOOL DIST #50 CAP PROJ | N/A | N/A | N/A | N/A | | |
| SCH50MO | SCHOOL DIST #50 EP & O | N/A | N/A | N/A | N/A | | |
| CONSERVE | CONSERVATION FUTURES | N/A | N/A | N/A | N/A | | |
| EMS1 | FIRE DIST #1 EMS | N/A | N/A | N/A | N/A | | |
| FD1 | FIRE DIST #1 GENERAL | N/A | N/A | N/A | N/A | | |
| PORTPT | PORT OF PT GENERAL | N/A | N/A | N/A | N/A | | |
| PORTPTIDD | PORT OF PT IDD 2019 | N/A | N/A | N/A | N/A | | |
| PUD1 | PUD #1 GENERAL | N/A | N/A | N/A | N/A | | |
| STATE | STATE SCHOOL PART 1 | N/A | N/A | N/A | N/A | | |
| STATE2 | STATE SCHOOL PART 2 | N/A | N/A | N/A | N/A | | |
| | Total Tax Rate: | N/A | | | | | |
| | | | | Taxes w/Current Exemptions: | N/A | | |
| | | | | Taxes w/o Exemptions: | N/A | | |
Improvement / Building
| Improvement #1: | Manufactured Home | State Code: | 11 | 1152.0 sqft | Value: | $114,522 |
| Bathrooms (#): | 2 (FULL) | Bedrooms (#): | 2 | | Exterior Wall: | PL/T1 | Fireplace: | WD ST-AVG | | Floor Construction: | FRAME | Foundation: | PO&BL | | Heating/Cooling: | F/A | Inside Verify: | YES-FIX | | Roof Cover: | COMP |   |   |
|
| | Type | Description | Class CD | Sub Class CD | Year Built | Area |
| | MA | Main Area | 3+ | MDBL | 1980 | 1152.0 |
| | CARPTF | Carport W/Floor | 2 | * | 1980 | 600.0 |
Sketch
| No sketches available for this property. |
Property Image
Land
| 1 | 6150-1187L | Towne Point 1 Lots | 0.0000 | 0.00 | 0.00 | 0.00 | 1.00 | $120,000 | $0 |
Roll Value History
| 2025 | N/A | N/A | N/A | N/A | N/A |
| 2024 | $93,237 | $119,700 | $0 | $212,937 | $212,937 |
| 2023 | $89,184 | $109,000 | $0 | $198,184 | $198,184 |
| 2022 | $89,184 | $104,000 | $0 | $193,184 | $193,184 |
| 2021 | $74,568 | $90,000 | $0 | $164,568 | $164,568 |
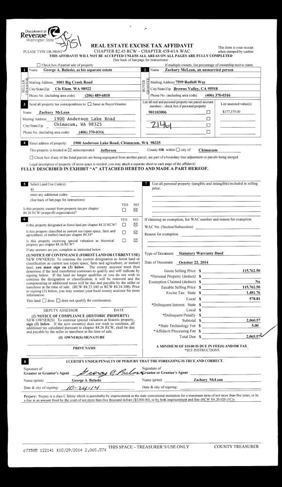
Deed and Sales History
| 1 | 10/12/2015 | SWD | Statutory Warranty Deed | LARRY W LAMMERS | SHAWN N LAMMERS | | | $115,000.00 | 124167 | |
| 2 | 09/08/2015 | SWD | Statutory Warranty Deed | IAN F KEITH | LARRY W LAMMERS | | | $57,500.00 | 123934 | |
| 3 | 09/12/2007 | QCD | Quit Claim Deed | SENECAL ESTATE, THEODORE | KEITH, IAN F | 0 | 0 | $0.00 | 110357 | 0 |
| 4 | 02/16/2007 | QCD | Quit Claim Deed | SENECAL, THEODORE A ESTAT | KEITH,IAN F | 0 | 0 | $0.00 | 108651 | 0 |
| 5 | 09/22/2005 | QCD | Quit Claim Deed | KELLY, DENNIS M | SENECAL, THEODORE A | 0 | 0 | $48,033.00 | 104845 | 0 |
| 6 | 02/05/2001 | SWD | Statutory Warranty Deed | SNYDER, VIRGIL B | SENECAL, THEODORE, KELLY, DENN | 0 | 0 | $69,500.00 | 91597 | 0 |
Payout Agreement
| No payout information available.. |