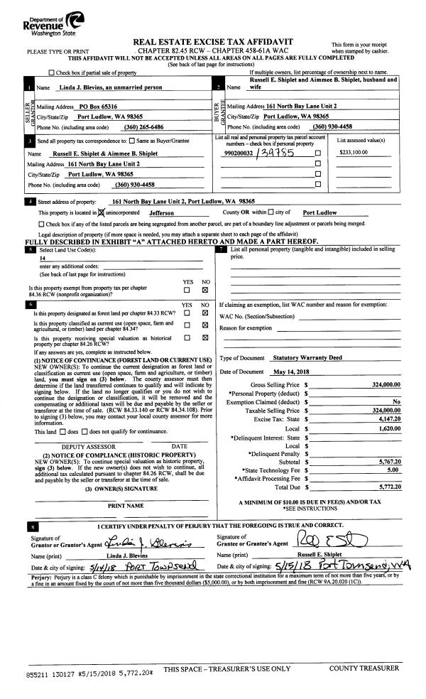
Property
Account |
| Property ID: | 43812 | Abbreviated Legal Description: | TOWNE POINT LOT 60 |
| Parcel # / Geo ID: | 999100060 | Agent Code: | |
| Type: | Real | | |
| Tax Area: | 0110 - C-50F1E1H2 | Land Use Code | 11 |
| Open Space: | N | DFL | N |
| Historic Property: | N | Remodel Property: | N |
| Multi-Family Redevelopment: | N | | |
| Township: | 30N | Section: | 10 |
| Range: | 1W |
Location |
| Address: | 2027 VICTORIA AVE PORT TOWNSEND, WA 98368 | Mapsco: | 139/017 |
| Neighborhood: | TOWNE POINT I & TOWNE POINT II | Map ID: | |
| Neighborhood CD: | 6150 |
Owner |
| Name: | JANICE L KATT | Owner ID: | 105435 |
| Mailing Address: | 2027 VICTORIA AVE PORT TOWNSEND, WA 98368 | % Ownership: | 100.0000000000% |
| | | Exemptions: | |
Pay Tax Due
There is currently No Amount Due on this property.
Taxes and Assessment Details
Property Tax Information as of
10/24/2025
Click on "Statement Details" to expand or collapse a tax statement.
* Please enter a valid date ** Please enter a valid date *
Statement Details |
| | TOTAL: | $0.00 | $0.00 | $0.00 | $0.00 | $0.00 | $0.00 |
|
| | $0.00 | $0.00 | $0.00 | $0.00 | $0.00 | $0.00 |
Values
| (+) Improvement Homesite Value: | + | $0 | |
| (+) Improvement Non-Homesite Value: | + | $141,049 | |
| (+) Land Homesite Value: | + | $0 | |
| (+) Land Non-Homesite Value: | + | $105,000 | |
| (+) Curr Use (HS): | + | $0 | $0 |
| (+) Curr Use (NHS): | + | $0 | $0 |
| | | -------------------------- | |
| (=) Market Value: | = | $246,049 | |
| (–) Productivity Loss: | – | $0 | |
| | | -------------------------- | |
| (=) Subtotal: | = | $246,049 | |
| (+) Senior Appraised Value: | + | $0 | |
| (+) Non-Senior Appraised Value: | + | $246,049 | |
| | | -------------------------- | |
| (=) Total Appraised Value: | = | $246,049 | |
| (–) Senior Exemption Loss: | – | $0 | |
| (–) Exemption Loss: | – | $0 | |
| | | -------------------------- | |
| (=) Taxable Value: | = | $246,049 | |
Taxing Jurisdiction
| Owner: | JANICE L KATT | | |
| % Ownership: | 100.0000000000% | | |
| Total Value: | N/A | | |
| Tax Area: | 0110 - C-50F1E1H2 |
| CE | COUNTY CURRENT EXPENSE | N/A | N/A | N/A | N/A | | |
| CNTYDD | DEVELOPMENTAL DISABILITIES | N/A | N/A | N/A | N/A | | |
| CNTYVET | VETERANS RELIEF | N/A | N/A | N/A | N/A | | |
| MENTAL | MENTAL HEALTH | N/A | N/A | N/A | N/A | | |
| PTGEN | CITY OF PT GENERAL | N/A | N/A | N/A | N/A | | |
| PTLLL | CITY OF PT - LIBRARY LID LIFT | N/A | N/A | N/A | N/A | | |
| PTMVBOND | CITY OF PT MV BOND | N/A | N/A | N/A | N/A | | |
| HOSP2CASH | HOSP DIST #2 GENERAL | N/A | N/A | N/A | N/A | | |
| SCH50BOND | SCHOOL DIST #50 BOND 2016 | N/A | N/A | N/A | N/A | | |
| SCH50CP | SCHOOL DIST #50 CAP PROJ | N/A | N/A | N/A | N/A | | |
| SCH50MO | SCHOOL DIST #50 EP & O | N/A | N/A | N/A | N/A | | |
| CONSERVE | CONSERVATION FUTURES | N/A | N/A | N/A | N/A | | |
| EMS1 | FIRE DIST #1 EMS | N/A | N/A | N/A | N/A | | |
| FD1 | FIRE DIST #1 GENERAL | N/A | N/A | N/A | N/A | | |
| PORTPT | PORT OF PT GENERAL | N/A | N/A | N/A | N/A | | |
| PORTPTIDD | PORT OF PT IDD 2019 | N/A | N/A | N/A | N/A | | |
| PUD1 | PUD #1 GENERAL | N/A | N/A | N/A | N/A | | |
| STATE | STATE SCHOOL PART 1 | N/A | N/A | N/A | N/A | | |
| STATE2 | STATE SCHOOL PART 2 | N/A | N/A | N/A | N/A | | |
| | Total Tax Rate: | N/A | | | | | |
| | | | | Taxes w/Current Exemptions: | N/A | | |
| | | | | Taxes w/o Exemptions: | N/A | | |
Improvement / Building
| Improvement #1: | Manufactured Home | State Code: | 11 | 960.0 sqft | Value: | $141,049 |
| Bathrooms (#): | 2 (FULL) | Bedrooms (#): | 2 | | Exterior Wall: | PL/T1 | Foundation: | PO&BL | | Heating/Cooling: | F/A | Inside Verify: | YES-FIX | | Roof Cover: | COMP |   |   |
|
| | Type | Description | Class CD | Sub Class CD | Year Built | Area |
| | MA | Main Area | 4 | MFH | 1980 | 960.0 |
| | MDECK | MH Deck | 4 | * | 1980 | 192.0 |
| | CARPTN | Carport W/O Floor | 4 | * | 1980 | 276.0 |
| | MSKIRT_WD | MH Skirting - Wood | 4 | * | 1980 | 128.0 |
Sketch
| No sketches available for this property. |
Property Image
Land
| 1 | 6150-1187L | Towne Point 1 Lots | 0.0000 | 0.00 | 0.00 | 0.00 | 1.00 | $105,000 | $0 |
Roll Value History
| 2025 | N/A | N/A | N/A | N/A | N/A |
| 2024 | $140,372 | $105,000 | $0 | $245,372 | $245,372 |
| 2023 | $134,269 | $95,000 | $0 | $229,269 | $229,269 |
| 2022 | $134,269 | $90,000 | $0 | $224,269 | $224,269 |
| 2021 | $96,540 | $78,000 | $0 | $174,540 | $174,540 |
Deed and Sales History
| 1 | 08/17/2021 | SWD | Statutory Warranty Deed | CAROL DUTRA | JANICE L KATT | | | $245,000.00 | 137487 | |
| 2 | 05/27/2020 | SWD | Statutory Warranty Deed | DAVID J LANZA | CAROL DUTRA | | | $170,000.00 | 134405 | |
| 3 | 06/09/2014 | SWD | Statutory Warranty Deed | LINDA LARSON | DAVID J LANZA | | | $78,000.00 | 121383 | |
| 4 | 08/16/2006 | WD | Warranty Deed | ENFIELD ESTATE, CRYSTAL | LARSON, LINDA | 0 | 0 | $129,900.00 | 107380 | 0 |
| 5 | 06/19/2002 | SWD | Statutory Warranty Deed | ARLISS R NEWCOMB | CRYSTAL ENFIELD | 0 | 0 | $84,500.00 | 94966 | 0 |
| 6 | 03/31/1994 | SWD | Statutory Warranty Deed | KOENIG, VICTOR H/DIANA J | NEWCOMB, JOHN C/ARLISS R | 0 | 0 | $69,000.00 | 73709 | 0 |
Payout Agreement
| No payout information available.. |