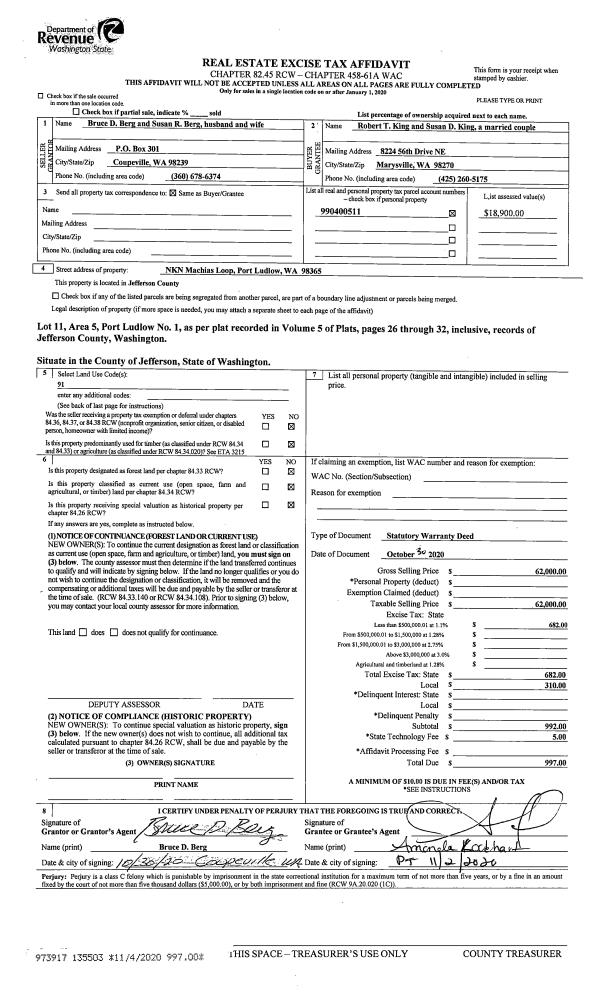
Property
Account |
| Property ID: | 43815 | Abbreviated Legal Description: | TOWNE POINT LOT 63 |
| Parcel # / Geo ID: | 999100063 | Agent Code: | |
| Type: | Real | | |
| Tax Area: | 0110 - C-50F1E1H2 | Land Use Code | 11 |
| Open Space: | N | DFL | N |
| Historic Property: | N | Remodel Property: | N |
| Multi-Family Redevelopment: | N | | |
| Township: | 30N | Section: | 10 |
| Range: | 1W |
Location |
| Address: | 2033 VICTORIA AVE PORT TOWNSEND, WA 98368 | Mapsco: | 139/020 |
| Neighborhood: | TOWNE POINT I & TOWNE POINT II | Map ID: | |
| Neighborhood CD: | 6150 |
Owner |
| Name: | JESSICA M CAPUTO | Owner ID: | 108704 |
| Mailing Address: | DWAN M L MCCLURG-GLENN 2033 VICTORIA AVE PORT TOWNSEND, WA 98368-7319 | % Ownership: | 100.0000000000% |
| | | Exemptions: | |
Pay Tax Due
There is currently No Amount Due on this property.
Taxes and Assessment Details
Property Tax Information as of
10/24/2025
Click on "Statement Details" to expand or collapse a tax statement.
* Please enter a valid date ** Please enter a valid date *
Statement Details |
| | TOTAL: | $0.00 | $0.00 | $0.00 | $0.00 | $0.00 | $0.00 |
|
| | $0.00 | $0.00 | $0.00 | $0.00 | $0.00 | $0.00 |
Values
| (+) Improvement Homesite Value: | + | $0 | |
| (+) Improvement Non-Homesite Value: | + | $182,277 | |
| (+) Land Homesite Value: | + | $0 | |
| (+) Land Non-Homesite Value: | + | $105,000 | |
| (+) Curr Use (HS): | + | $0 | $0 |
| (+) Curr Use (NHS): | + | $0 | $0 |
| | | -------------------------- | |
| (=) Market Value: | = | $287,277 | |
| (–) Productivity Loss: | – | $0 | |
| | | -------------------------- | |
| (=) Subtotal: | = | $287,277 | |
| (+) Senior Appraised Value: | + | $0 | |
| (+) Non-Senior Appraised Value: | + | $287,277 | |
| | | -------------------------- | |
| (=) Total Appraised Value: | = | $287,277 | |
| (–) Senior Exemption Loss: | – | $0 | |
| (–) Exemption Loss: | – | $0 | |
| | | -------------------------- | |
| (=) Taxable Value: | = | $287,277 | |
Taxing Jurisdiction
| Owner: | JESSICA M CAPUTO | | |
| % Ownership: | 100.0000000000% | | |
| Total Value: | N/A | | |
| Tax Area: | 0110 - C-50F1E1H2 |
| CE | COUNTY CURRENT EXPENSE | N/A | N/A | N/A | N/A | | |
| CNTYDD | DEVELOPMENTAL DISABILITIES | N/A | N/A | N/A | N/A | | |
| CNTYVET | VETERANS RELIEF | N/A | N/A | N/A | N/A | | |
| MENTAL | MENTAL HEALTH | N/A | N/A | N/A | N/A | | |
| PTGEN | CITY OF PT GENERAL | N/A | N/A | N/A | N/A | | |
| PTLLL | CITY OF PT - LIBRARY LID LIFT | N/A | N/A | N/A | N/A | | |
| PTMVBOND | CITY OF PT MV BOND | N/A | N/A | N/A | N/A | | |
| HOSP2CASH | HOSP DIST #2 GENERAL | N/A | N/A | N/A | N/A | | |
| SCH50BOND | SCHOOL DIST #50 BOND 2016 | N/A | N/A | N/A | N/A | | |
| SCH50CP | SCHOOL DIST #50 CAP PROJ | N/A | N/A | N/A | N/A | | |
| SCH50MO | SCHOOL DIST #50 EP & O | N/A | N/A | N/A | N/A | | |
| CONSERVE | CONSERVATION FUTURES | N/A | N/A | N/A | N/A | | |
| EMS1 | FIRE DIST #1 EMS | N/A | N/A | N/A | N/A | | |
| FD1 | FIRE DIST #1 GENERAL | N/A | N/A | N/A | N/A | | |
| PORTPT | PORT OF PT GENERAL | N/A | N/A | N/A | N/A | | |
| PORTPTIDD | PORT OF PT IDD 2019 | N/A | N/A | N/A | N/A | | |
| PUD1 | PUD #1 GENERAL | N/A | N/A | N/A | N/A | | |
| STATE | STATE SCHOOL PART 1 | N/A | N/A | N/A | N/A | | |
| STATE2 | STATE SCHOOL PART 2 | N/A | N/A | N/A | N/A | | |
| | Total Tax Rate: | N/A | | | | | |
| | | | | Taxes w/Current Exemptions: | N/A | | |
| | | | | Taxes w/o Exemptions: | N/A | | |
Improvement / Building
| Improvement #1: | Manufactured Home | State Code: | 11 | 1152.0 sqft | Value: | $182,277 |
| Bathrooms (#): | 2 (FULL) | Bedrooms (#): | 3 | | Exterior Wall: | PL/T1 | Floor Construction: | FRAME | | Foundation: | PO&BL | Heating/Cooling: | F/A | | Inside Verify: | YES-FIX | Roof Cover: | COMP |
|
| | Type | Description | Class CD | Sub Class CD | Year Built | Area |
| | MA | Main Area | 5 | MFH | 1981 | 1152.0 |
| | CARPTF | Carport W/Floor | 5 | * | 1981 | 336.0 |
| | SHED | Shed (Table Not Dep) | 5 | * | 1981 | 84.0 |
Sketch
| No sketches available for this property. |
Property Image
Land
| 1 | 6150-1187L | Towne Point 1 Lots | 0.0000 | 0.00 | 0.00 | 0.00 | 1.00 | $105,000 | $0 |
Roll Value History
| 2025 | N/A | N/A | N/A | N/A | N/A |
| 2024 | $181,208 | $105,000 | $0 | $286,208 | $286,208 |
| 2023 | $173,329 | $95,000 | $0 | $268,329 | $268,329 |
| 2022 | $133,866 | $90,000 | $0 | $223,866 | $223,866 |
| 2021 | $84,535 | $78,000 | $0 | $162,535 | $162,535 |
Deed and Sales History
| 1 | 04/18/2023 | SWD | Statutory Warranty Deed | MATTHEW & JANIE MOELLER | JESSICA M CAPUTO | | | $305,000.00 | 140799 | |
| 2 | 11/12/2021 | SWD | Statutory Warranty Deed | KELLI S PARCHER | MATTHEW & JANIE MOELLER | | | $254,500.00 | 138496 | |
| 3 | 01/19/2021 | QCD | Quit Claim Deed | THOMAS C PARCHER | KELLI S PARCHER | | | | 135947 | |
| 4 | 05/27/2003 | SWD | Statutory Warranty Deed | WALTERS, MICHAEL/ROWE, BR | PARCHER, THOMAS C/KELLI S | 0 | 0 | $85,000.00 | 97458 | 0 |
| 5 | 02/07/2000 | SWD | Statutory Warranty Deed | DEHAVEN, GEORGE U | WALTERS, MICHAEL/ROWE, BRENDA | 0 | 0 | $43,000.00 | 88936 | 0 |
Payout Agreement
| No payout information available.. |