Property
Account |
| Property ID: | 43944 | Abbreviated Legal Description: | TUKEY'S ADDITION BLK 1 LOT 7 |
| Parcel # / Geo ID: | 999200104 | Agent Code: | |
| Type: | Real | | |
| Tax Area: | 0111 - 1-50F1E1H2L1 | Land Use Code | 91 |
| Open Space: | N | DFL | N |
| Historic Property: | N | Remodel Property: | N |
| Multi-Family Redevelopment: | N | | |
| Township: | 30N | Section: | 31 |
| Range: | 1W |
Location |
| Address: | | Mapsco: | 069/004 |
| Neighborhood: | TUKEY'S | Map ID: | |
| Neighborhood CD: | 5362 |
Owner |
| Name: | H & B TYNER IRREV TRUST/G & J TYNER TTEES | Owner ID: | 111531 |
| Mailing Address: | TYNER REV LIV TRUST/S & P TYNER TTEES KATHLEEN MEREDITH/MARY DURHAM 1412 NE PAULSON RD POULSBO, WA 98370-7988 | % Ownership: | 100.0000000000% |
| | | Exemptions: | |
Pay Tax Due
There is currently No Amount Due on this property.
Taxes and Assessment Details
Property Tax Information as of
10/24/2025
Click on "Statement Details" to expand or collapse a tax statement.
* Please enter a valid date ** Please enter a valid date *
Statement Details |
| | TOTAL: | $0.00 | $0.00 | $0.00 | $0.00 | $0.00 | $0.00 |
|
| | $0.00 | $0.00 | $0.00 | $0.00 | $0.00 | $0.00 |
Values
| (+) Improvement Homesite Value: | + | $0 | |
| (+) Improvement Non-Homesite Value: | + | $0 | |
| (+) Land Homesite Value: | + | $0 | |
| (+) Land Non-Homesite Value: | + | $16,500 | |
| (+) Curr Use (HS): | + | $0 | $0 |
| (+) Curr Use (NHS): | + | $0 | $0 |
| | | -------------------------- | |
| (=) Market Value: | = | $16,500 | |
| (–) Productivity Loss: | – | $0 | |
| | | -------------------------- | |
| (=) Subtotal: | = | $16,500 | |
| (+) Senior Appraised Value: | + | $0 | |
| (+) Non-Senior Appraised Value: | + | $16,500 | |
| | | -------------------------- | |
| (=) Total Appraised Value: | = | $16,500 | |
| (–) Senior Exemption Loss: | – | $0 | |
| (–) Exemption Loss: | – | $0 | |
| | | -------------------------- | |
| (=) Taxable Value: | = | $16,500 | |
Taxing Jurisdiction
| Owner: | H & B TYNER IRREV TRUST/G & J TYNER TTEES | | |
| % Ownership: | 100.0000000000% | | |
| Total Value: | N/A | | |
| Tax Area: | 0111 - 1-50F1E1H2L1 |
| CE | COUNTY CURRENT EXPENSE | N/A | N/A | N/A | N/A | | |
| CNTYDD | DEVELOPMENTAL DISABILITIES | N/A | N/A | N/A | N/A | | |
| CNTYVET | VETERANS RELIEF | N/A | N/A | N/A | N/A | | |
| MENTAL | MENTAL HEALTH | N/A | N/A | N/A | N/A | | |
| ROADS | COUNTY ROADS | N/A | N/A | N/A | N/A | | |
| ROADSCU | COUNTY ROADS TO CUR EXP | N/A | N/A | N/A | N/A | | |
| HOSP2CASH | HOSP DIST #2 GENERAL | N/A | N/A | N/A | N/A | | |
| SCH50BOND | SCHOOL DIST #50 BOND 2016 | N/A | N/A | N/A | N/A | | |
| SCH50CP | SCHOOL DIST #50 CAP PROJ | N/A | N/A | N/A | N/A | | |
| SCH50MO | SCHOOL DIST #50 EP & O | N/A | N/A | N/A | N/A | | |
| CONSERVE | CONSERVATION FUTURES | N/A | N/A | N/A | N/A | | |
| EMS1 | FIRE DIST #1 EMS | N/A | N/A | N/A | N/A | | |
| FD1 | FIRE DIST #1 GENERAL | N/A | N/A | N/A | N/A | | |
| LIB1 | LIBRARY DIST #1 GENERAL | N/A | N/A | N/A | N/A | | |
| PORTPT | PORT OF PT GENERAL | N/A | N/A | N/A | N/A | | |
| PORTPTIDD | PORT OF PT IDD 2019 | N/A | N/A | N/A | N/A | | |
| PUD1 | PUD #1 GENERAL | N/A | N/A | N/A | N/A | | |
| STATE | STATE SCHOOL PART 1 | N/A | N/A | N/A | N/A | | |
| STATE2 | STATE SCHOOL PART 2 | N/A | N/A | N/A | N/A | | |
| | Total Tax Rate: | N/A | | | | | |
| | | | | Taxes w/Current Exemptions: | N/A | | |
| | | | | Taxes w/o Exemptions: | N/A | | |
Improvement / Building
Sketch
| No sketches available for this property. |
Property Image
Land
| 1 | 5362-1165L | Tukeys Addn Lots Fair Wtr/Terr Views | 0.0000 | 0.00 | 0.00 | 0.00 | 1.00 | $16,500 | $0 |
Roll Value History
| 2025 | N/A | N/A | N/A | N/A | N/A |
| 2024 | $0 | $16,500 | $0 | $16,500 | $16,500 |
| 2023 | $0 | $15,750 | $0 | $15,750 | $15,750 |
| 2022 | $0 | $15,000 | $0 | $15,000 | $15,000 |
| 2021 | $0 | $13,750 | $0 | $13,750 | $13,750 |
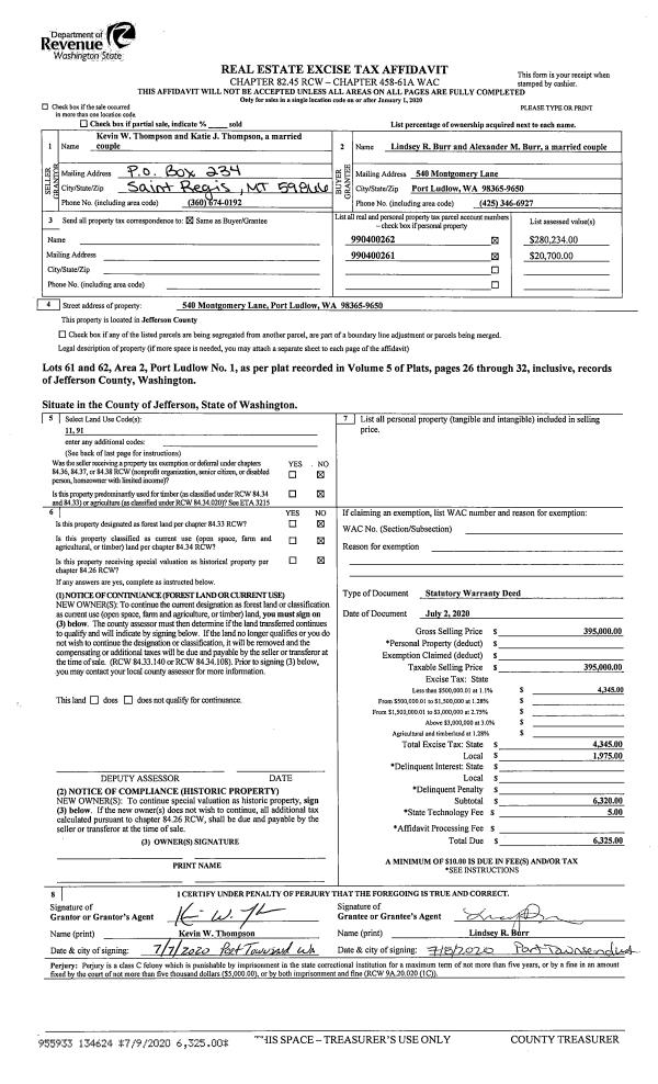
Deed and Sales History
| 1 | 10/01/2024 | SWD | Statutory Warranty Deed | BARBARA J TYNER | HOWARD & BARBARA TYNER IRREVOCABLE TRUST | | | | 0 | |
| 2 | 08/13/2024 | SWD | Statutory Warranty Deed | HOWARD F TYNER JR | BARBARA J TYNER | | | | 143039 | |
| 3 | 09/28/2020 | QCD | Quit Claim Deed | | | | | | 135346 | |
| 4 | 07/23/2020 | QCD | Quit Claim Deed | | | | | | 134871 | |
| 5 | 03/03/2017 | QCD | Quit Claim Deed | | | | | | 127290 | |
| 6 | 09/19/1997 | QCD | Quit Claim Deed | TYNER, BEATRICE CARYL | TYNER, HOWARD F/JR ET AL | 0 | 0 | $0.00 | 82794 | 0 |
| 7 | 08/30/1997 | QCD | Quit Claim Deed | TYNER, HOWARD FAY/EST | TYNER, HOWARD F/JR ET AL | 0 | 0 | $0.00 | 82793 | 0 |
Payout Agreement
| No payout information available.. |