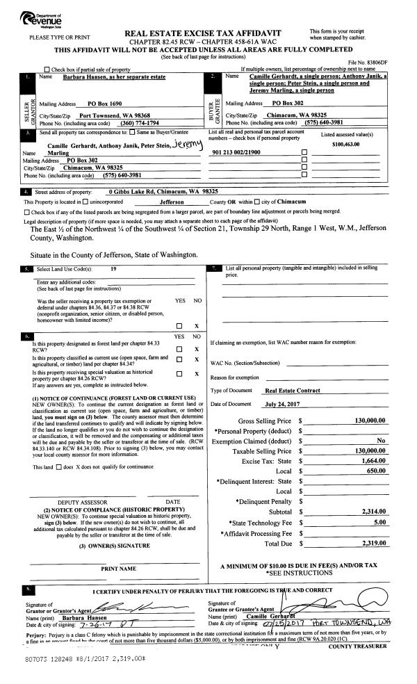
Property
Account |
| Property ID: | 43972 | Abbreviated Legal Description: | TUKEY'S ADDITION BLK 7 LOT 3, PTN HARRISON ST AND VAC ALLEY ADJ |
| Parcel # / Geo ID: | 999200702 | Agent Code: | |
| Type: | Real | | |
| Tax Area: | 0111 - 1-50F1E1H2L1 | Land Use Code | 11 |
| Open Space: | N | DFL | N |
| Historic Property: | N | Remodel Property: | N |
| Multi-Family Redevelopment: | N | | |
| Township: | 30N | Section: | 31 |
| Range: | 1W |
Location |
| Address: | 73 ALDRICH RD PORT TOWNSEND, WA 98368 | Mapsco: | 069/041 |
| Neighborhood: | TUKEY'S | Map ID: | |
| Neighborhood CD: | 5362 |
Owner |
| Name: | SARAH R & RAMON MARTINEZ | Owner ID: | 101543 |
| Mailing Address: | 73 ALDRICH RD PORT TOWNSEND, WA 98368-9613 | % Ownership: | 100.0000000000% |
| | | Exemptions: | |
Pay Tax Due
There is currently No Amount Due on this property.
Taxes and Assessment Details
Property Tax Information as of
10/24/2025
Click on "Statement Details" to expand or collapse a tax statement.
* Please enter a valid date ** Please enter a valid date *
Statement Details |
| | TOTAL: | $0.00 | $0.00 | $0.00 | $0.00 | $0.00 | $0.00 |
|
| | $0.00 | $0.00 | $0.00 | $0.00 | $0.00 | $0.00 |
Values
| (+) Improvement Homesite Value: | + | $0 | |
| (+) Improvement Non-Homesite Value: | + | $90,710 | |
| (+) Land Homesite Value: | + | $0 | |
| (+) Land Non-Homesite Value: | + | $119,020 | |
| (+) Curr Use (HS): | + | $0 | $0 |
| (+) Curr Use (NHS): | + | $0 | $0 |
| | | -------------------------- | |
| (=) Market Value: | = | $209,730 | |
| (–) Productivity Loss: | – | $0 | |
| | | -------------------------- | |
| (=) Subtotal: | = | $209,730 | |
| (+) Senior Appraised Value: | + | $0 | |
| (+) Non-Senior Appraised Value: | + | $209,730 | |
| | | -------------------------- | |
| (=) Total Appraised Value: | = | $209,730 | |
| (–) Senior Exemption Loss: | – | $0 | |
| (–) Exemption Loss: | – | $0 | |
| | | -------------------------- | |
| (=) Taxable Value: | = | $209,730 | |
Taxing Jurisdiction
| Owner: | SARAH R & RAMON MARTINEZ | | |
| % Ownership: | 100.0000000000% | | |
| Total Value: | N/A | | |
| Tax Area: | 0111 - 1-50F1E1H2L1 |
| CE | COUNTY CURRENT EXPENSE | N/A | N/A | N/A | N/A | | |
| CNTYDD | DEVELOPMENTAL DISABILITIES | N/A | N/A | N/A | N/A | | |
| CNTYVET | VETERANS RELIEF | N/A | N/A | N/A | N/A | | |
| MENTAL | MENTAL HEALTH | N/A | N/A | N/A | N/A | | |
| ROADS | COUNTY ROADS | N/A | N/A | N/A | N/A | | |
| ROADSCU | COUNTY ROADS TO CUR EXP | N/A | N/A | N/A | N/A | | |
| HOSP2CASH | HOSP DIST #2 GENERAL | N/A | N/A | N/A | N/A | | |
| SCH50BOND | SCHOOL DIST #50 BOND 2016 | N/A | N/A | N/A | N/A | | |
| SCH50CP | SCHOOL DIST #50 CAP PROJ | N/A | N/A | N/A | N/A | | |
| SCH50MO | SCHOOL DIST #50 EP & O | N/A | N/A | N/A | N/A | | |
| CONSERVE | CONSERVATION FUTURES | N/A | N/A | N/A | N/A | | |
| EMS1 | FIRE DIST #1 EMS | N/A | N/A | N/A | N/A | | |
| FD1 | FIRE DIST #1 GENERAL | N/A | N/A | N/A | N/A | | |
| LIB1 | LIBRARY DIST #1 GENERAL | N/A | N/A | N/A | N/A | | |
| PORTPT | PORT OF PT GENERAL | N/A | N/A | N/A | N/A | | |
| PORTPTIDD | PORT OF PT IDD 2019 | N/A | N/A | N/A | N/A | | |
| PUD1 | PUD #1 GENERAL | N/A | N/A | N/A | N/A | | |
| STATE | STATE SCHOOL PART 1 | N/A | N/A | N/A | N/A | | |
| STATE2 | STATE SCHOOL PART 2 | N/A | N/A | N/A | N/A | | |
| | Total Tax Rate: | N/A | | | | | |
| | | | | Taxes w/Current Exemptions: | N/A | | |
| | | | | Taxes w/o Exemptions: | N/A | | |
Improvement / Building
| Improvement #1: | Residential Bldg | State Code: | 11 | 560.0 sqft | Value: | $90,710 |
| Bathrooms (#): | 1 (FULL) | Bedrooms (#): | 1 | | Exterior Wall: | PL/T1 | Fireplace: | WD ST-GOOD | | Floor Construction: | FRAME | Foundation: | CONPR | | Heating/Cooling: | ELBB | Roof Cover: | METAL |
|
| | Type | Description | Class CD | Sub Class CD | Year Built | Area |
| | MA | Main Area | 3+ | C15F | 1967 | 560.0 |
| | CBSMTF | Cabin Basement Finished | 3 | C15F | 1967 | 440.0 |
| | CLOFT | Cabin Loft | 3 | C15F | 1967 | 208.0 |
| | CDECK | Cabin Deck | 3 | C15F | 1967 | 666.0 |
Sketch
Property Image
Land
| 1 | 5362-1255S | Tukeys Addn Site Avg Wtr/Terr Views | 0.0000 | 0.00 | 0.00 | 0.00 | 1.00 | $119,020 | $0 |
Roll Value History
| 2025 | N/A | N/A | N/A | N/A | N/A |
| 2024 | $90,710 | $119,020 | $0 | $209,730 | $209,730 |
| 2023 | $54,503 | $104,790 | $0 | $159,293 | $159,293 |
| 2022 | $49,548 | $94,800 | $0 | $144,348 | $144,348 |
| 2021 | $37,536 | $84,260 | $0 | $121,796 | $121,796 |
Deed and Sales History
| 1 | 08/20/2019 | QCD | Quit Claim Deed | SARAH R MOUNTIFIELD | SARAH R & RAMON MARTINEZ | | | | 132974 | |
| 2 | 05/19/2015 | SWD | Statutory Warranty Deed | DAVID GOLDSMITH | SARAH R MOUNTIFIELD | | | $140,000.00 | 123203 | |
|   | |
| 3 | 09/25/1998 | QCD | Quit Claim Deed | SCHUCK, PETER/CARLA | GOLDSMITH, DAVID R/TERESA J | 0 | 0 | $20,426.00 | 85397 | 0 |
|   | |
Payout Agreement
| No payout information available.. |