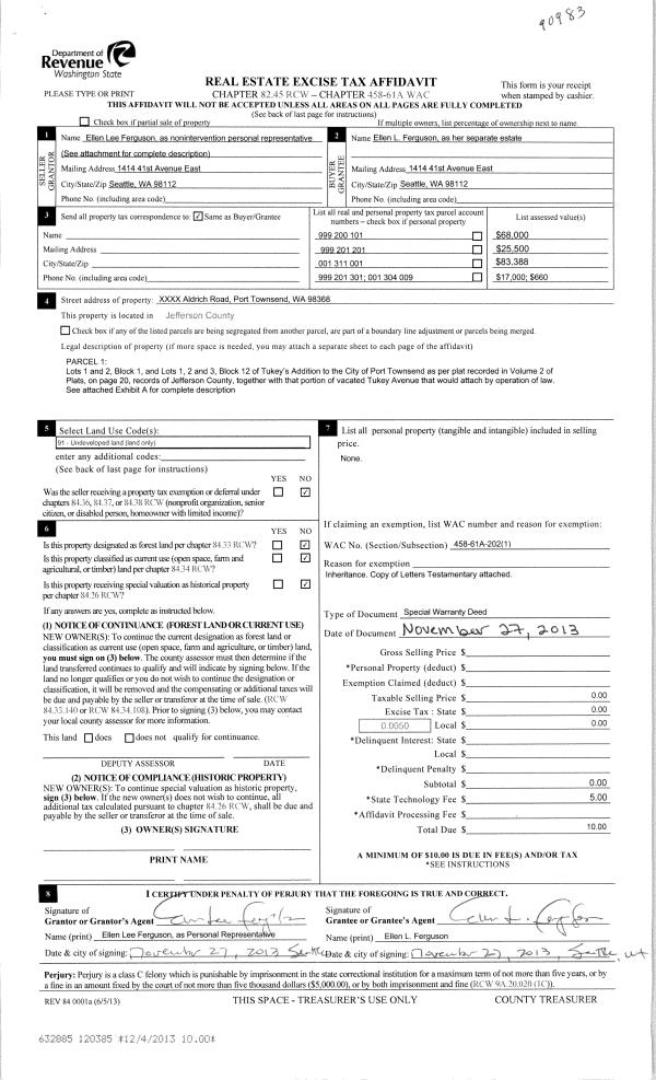
Property
Account |
| Property ID: | 44009 | Abbreviated Legal Description: | WOODLAND LOT 13 LTS OF REC #481993 |
| Parcel # / Geo ID: | 999400013 | Agent Code: | |
| Type: | Real | | |
| Tax Area: | 0110 - C-50F1E1H2 | Land Use Code | 11 |
| Open Space: | N | DFL | N |
| Historic Property: | N | Remodel Property: | N |
| Multi-Family Redevelopment: | N | | |
| Township: | 30N | Section: | 3 |
| Range: | 1W |
Location |
| Address: | 2589 WILSON ST PORT TOWNSEND, WA 98368 | Mapsco: | 150/058 |
| Neighborhood: | COLUMBIA//HUSSEY/WEYMOUNT-DYER/WOODLAND LP-ACREAGE; CEMETERY | Map ID: | |
| Neighborhood CD: | 6120 |
Owner |
| Name: | DAVID WINTERS & SANDRA WANSTALL | Owner ID: | 95460 |
| Mailing Address: | 2589 WILSON ST PORT TOWNSEND, WA 98368-5125 | % Ownership: | 100.0000000000% |
| | | Exemptions: | |
Pay Tax Due
There is currently No Amount Due on this property.
Taxes and Assessment Details
Property Tax Information as of
10/24/2025
Click on "Statement Details" to expand or collapse a tax statement.
* Please enter a valid date ** Please enter a valid date *
Statement Details |
| | TOTAL: | $0.00 | $0.00 | $0.00 | $0.00 | $0.00 | $0.00 |
|
| | $0.00 | $0.00 | $0.00 | $0.00 | $0.00 | $0.00 |
Values
| (+) Improvement Homesite Value: | + | $0 | |
| (+) Improvement Non-Homesite Value: | + | $516,702 | |
| (+) Land Homesite Value: | + | $0 | |
| (+) Land Non-Homesite Value: | + | $125,000 | |
| (+) Curr Use (HS): | + | $0 | $0 |
| (+) Curr Use (NHS): | + | $0 | $0 |
| | | -------------------------- | |
| (=) Market Value: | = | $641,702 | |
| (–) Productivity Loss: | – | $0 | |
| | | -------------------------- | |
| (=) Subtotal: | = | $641,702 | |
| (+) Senior Appraised Value: | + | $0 | |
| (+) Non-Senior Appraised Value: | + | $641,702 | |
| | | -------------------------- | |
| (=) Total Appraised Value: | = | $641,702 | |
| (–) Senior Exemption Loss: | – | $0 | |
| (–) Exemption Loss: | – | $0 | |
| | | -------------------------- | |
| (=) Taxable Value: | = | $641,702 | |
Taxing Jurisdiction
| Owner: | DAVID WINTERS & SANDRA WANSTALL | | |
| % Ownership: | 100.0000000000% | | |
| Total Value: | N/A | | |
| Tax Area: | 0110 - C-50F1E1H2 |
| CE | COUNTY CURRENT EXPENSE | N/A | N/A | N/A | N/A | | |
| CNTYDD | DEVELOPMENTAL DISABILITIES | N/A | N/A | N/A | N/A | | |
| CNTYVET | VETERANS RELIEF | N/A | N/A | N/A | N/A | | |
| MENTAL | MENTAL HEALTH | N/A | N/A | N/A | N/A | | |
| PTGEN | CITY OF PT GENERAL | N/A | N/A | N/A | N/A | | |
| PTLLL | CITY OF PT - LIBRARY LID LIFT | N/A | N/A | N/A | N/A | | |
| PTMVBOND | CITY OF PT MV BOND | N/A | N/A | N/A | N/A | | |
| HOSP2CASH | HOSP DIST #2 GENERAL | N/A | N/A | N/A | N/A | | |
| SCH50BOND | SCHOOL DIST #50 BOND 2016 | N/A | N/A | N/A | N/A | | |
| SCH50CP | SCHOOL DIST #50 CAP PROJ | N/A | N/A | N/A | N/A | | |
| SCH50MO | SCHOOL DIST #50 EP & O | N/A | N/A | N/A | N/A | | |
| CONSERVE | CONSERVATION FUTURES | N/A | N/A | N/A | N/A | | |
| EMS1 | FIRE DIST #1 EMS | N/A | N/A | N/A | N/A | | |
| FD1 | FIRE DIST #1 GENERAL | N/A | N/A | N/A | N/A | | |
| PORTPT | PORT OF PT GENERAL | N/A | N/A | N/A | N/A | | |
| PORTPTIDD | PORT OF PT IDD 2019 | N/A | N/A | N/A | N/A | | |
| PUD1 | PUD #1 GENERAL | N/A | N/A | N/A | N/A | | |
| STATE | STATE SCHOOL PART 1 | N/A | N/A | N/A | N/A | | |
| STATE2 | STATE SCHOOL PART 2 | N/A | N/A | N/A | N/A | | |
| | Total Tax Rate: | N/A | | | | | |
| | | | | Taxes w/Current Exemptions: | N/A | | |
| | | | | Taxes w/o Exemptions: | N/A | | |
Improvement / Building
| Improvement #1: | Residential Bldg | State Code: | 11 | 2113.0 sqft | Value: | $516,702 |
| Bathrooms (#): | 2 (FULL) | Bathrooms (#): | 1 (HALF) | | Bedrooms (#): | 3 | Exterior Wall: | SI/ST | | Floor Construction: | FRAME | Foundation: | CONPR | | Heating/Cooling: | HPUMP | Roof Cover: | COMP |
|
| | Type | Description | Class CD | Sub Class CD | Year Built | Area |
| | MA | Main Area | 4+ | 15SF | 2014 | 1354.0 |
| | MA2 | Second Floor Main Area | 4+ | 15SF | 2014 | 759.0 |
| | GBLTIN | Builtin Garage | 5 | 15SF | 2014 | 444.0 |
| | HWPOR | House Wood Porch | 5 | 15SF | 2014 | 92.0 |
| | HDECK | House Deck | 5 | 15SF | 2014 | 96.0 |
| | HBAL | House Balcony | 5 | 15SF | 2014 | 46.0 |
Sketch
Property Image
Land
| 1 | 6120-1177L | Standard Lot (Fair Terr View Area) | 0.0000 | 0.00 | 0.00 | 0.00 | 1.00 | $125,000 | $0 |
Roll Value History
| 2025 | N/A | N/A | N/A | N/A | N/A |
| 2024 | $505,454 | $126,000 | $0 | $631,454 | $631,454 |
| 2023 | $505,454 | $120,750 | $0 | $626,204 | $626,204 |
| 2022 | $463,333 | $110,000 | $0 | $573,333 | $573,333 |
| 2021 | $396,011 | $92,250 | $0 | $488,261 | $488,261 |
Deed and Sales History
| 1 | 01/17/2023 | SWD | Statutory Warranty Deed | MARILEE A COGSWELL | DAVID WINTERS & SANDRA WANSTALL | | | $686,500.00 | 140435 | |
| 2 | 05/25/2016 | SWD | Statutory Warranty Deed | EDWIN D UNDERWOOD | MARILEE A COGSWELL | | | $374,700.00 | 125568 | |
| 3 | 08/27/2015 | QCD | Quit Claim Deed | HAMMERHEAD CUSTOM HOMES INC | EDWIN D UNDERWOOD | | | | 123848 | |
Payout Agreement
| No payout information available.. |