Property
Account |
| Property ID: | 44019 | Abbreviated Legal Description: | WOODLAND ACRES #1 LOT 9 |
| Parcel # / Geo ID: | 999501009 | Agent Code: | |
| Type: | Real | | |
| Tax Area: | 0211 - 1-49F1E1H2L1 | Land Use Code | 11 |
| Open Space: | N | DFL | N |
| Historic Property: | N | Remodel Property: | N |
| Multi-Family Redevelopment: | N | | |
| Township: | 29N | Section: | 2 |
| Range: | 1W |
Location |
| Address: | 161 W FITCHBURG AVE PORT HADLOCK, WA 98339 | Mapsco: | 144/068 |
| Neighborhood: | BISHOP ACRES; TAMARACK VILLAGE; WOODLAND ACRES | Map ID: | |
| Neighborhood CD: | 4214 |
Owner |
| Name: | JUAN CARLOS FOUST | Owner ID: | 106345 |
| Mailing Address: | 6022 51ST ST NW GIG HARBOR, WA 98335-7304 | % Ownership: | 100.0000000000% |
| | | Exemptions: | |
Pay Tax Due
There is currently No Amount Due on this property.
Taxes and Assessment Details
Property Tax Information as of
10/24/2025
Click on "Statement Details" to expand or collapse a tax statement.
* Please enter a valid date ** Please enter a valid date *
Statement Details |
| | TOTAL: | $0.00 | $0.00 | $0.00 | $0.00 | $0.00 | $0.00 |
|
| | $0.00 | $0.00 | $0.00 | $0.00 | $0.00 | $0.00 |
Values
| (+) Improvement Homesite Value: | + | $294,839 | |
| (+) Improvement Non-Homesite Value: | + | $0 | |
| (+) Land Homesite Value: | + | $132,000 | |
| (+) Land Non-Homesite Value: | + | $0 | |
| (+) Curr Use (HS): | + | $0 | $0 |
| (+) Curr Use (NHS): | + | $0 | $0 |
| | | -------------------------- | |
| (=) Market Value: | = | $426,839 | |
| (–) Productivity Loss: | – | $0 | |
| | | -------------------------- | |
| (=) Subtotal: | = | $426,839 | |
| (+) Senior Appraised Value: | + | $0 | |
| (+) Non-Senior Appraised Value: | + | $426,839 | |
| | | -------------------------- | |
| (=) Total Appraised Value: | = | $426,839 | |
| (–) Senior Exemption Loss: | – | $0 | |
| (–) Exemption Loss: | – | $0 | |
| | | -------------------------- | |
| (=) Taxable Value: | = | $426,839 | |
Taxing Jurisdiction
| Owner: | JUAN CARLOS FOUST | | |
| % Ownership: | 100.0000000000% | | |
| Total Value: | N/A | | |
| Tax Area: | 0211 - 1-49F1E1H2L1 |
| CE | COUNTY CURRENT EXPENSE | N/A | N/A | N/A | N/A | | |
| CNTYDD | DEVELOPMENTAL DISABILITIES | N/A | N/A | N/A | N/A | | |
| CNTYVET | VETERANS RELIEF | N/A | N/A | N/A | N/A | | |
| MENTAL | MENTAL HEALTH | N/A | N/A | N/A | N/A | | |
| ROADS | COUNTY ROADS | N/A | N/A | N/A | N/A | | |
| ROADSCU | COUNTY ROADS TO CUR EXP | N/A | N/A | N/A | N/A | | |
| HOSP2CASH | HOSP DIST #2 GENERAL | N/A | N/A | N/A | N/A | | |
| SCH49CP | SCHOOL DIST #49 CAP PROJ | N/A | N/A | N/A | N/A | | |
| SCH49MO | SCHOOL DIST #49 EP & O | N/A | N/A | N/A | N/A | | |
| CONSERVE | CONSERVATION FUTURES | N/A | N/A | N/A | N/A | | |
| EMS1 | FIRE DIST #1 EMS | N/A | N/A | N/A | N/A | | |
| FD1 | FIRE DIST #1 GENERAL | N/A | N/A | N/A | N/A | | |
| LIB1 | LIBRARY DIST #1 GENERAL | N/A | N/A | N/A | N/A | | |
| PORTPT | PORT OF PT GENERAL | N/A | N/A | N/A | N/A | | |
| PORTPTIDD | PORT OF PT IDD 2019 | N/A | N/A | N/A | N/A | | |
| PUD1 | PUD #1 GENERAL | N/A | N/A | N/A | N/A | | |
| STATE | STATE SCHOOL PART 1 | N/A | N/A | N/A | N/A | | |
| STATE2 | STATE SCHOOL PART 2 | N/A | N/A | N/A | N/A | | |
| | Total Tax Rate: | N/A | | | | | |
| | | | | Taxes w/Current Exemptions: | N/A | | |
| | | | | Taxes w/o Exemptions: | N/A | | |
Improvement / Building
| Improvement #1: | Residential Bldg | State Code: | 11 | 952.0 sqft | Value: | $294,839 |
| Bathrooms (#): | 1 (FULL) | Bedrooms (#): | 2 | | Exterior Wall: | PL/T1 | Fireplace: | WD ST-AVG | | Floor Construction: | FRAME | Foundation: | CONPR | | Heating/Cooling: | ELBB | Roof Cover: | COMP |
|
| | Type | Description | Class CD | Sub Class CD | Year Built | Area |
| | MA | Main Area | 4+ | 1S | 1978 | 952.0 |
| | HWPOR | House Wood Porch | 4 | * | 1978 | 18.0 |
| | HDECK | House Deck | 4 | * | 1978 | 368.0 |
| | GDET | Detached Garage | 4 | 1S | 1978 | 384.0 |
Sketch
| No sketches available for this property. |
Property Image
Land
| 1 | 4214-1286S | Woodland Acres Lots | 0.0000 | 0.00 | 0.00 | 0.00 | 1.00 | $132,000 | $0 |
Roll Value History
| 2025 | N/A | N/A | N/A | N/A | N/A |
| 2024 | $282,020 | $126,000 | $0 | $408,020 | $408,020 |
| 2023 | $269,201 | $115,000 | $0 | $384,201 | $384,201 |
| 2022 | $229,835 | $110,000 | $0 | $339,835 | $339,835 |
| 2021 | $153,868 | $71,500 | $0 | $225,368 | $225,368 |
Deed and Sales History
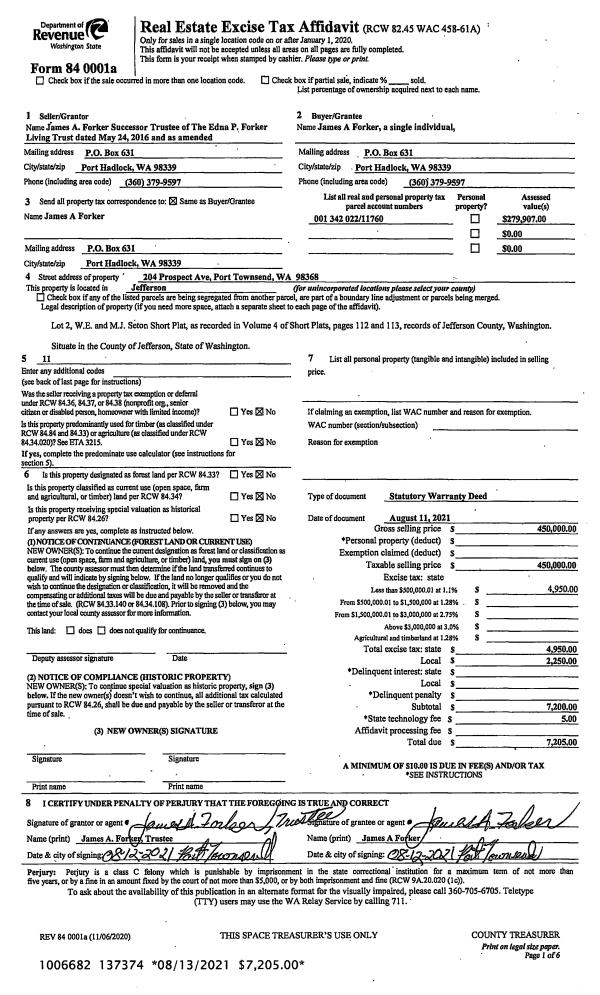
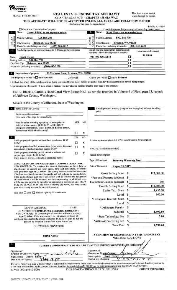
| 1 | 01/11/2022 | SWD | Statutory Warranty Deed | IMRI-LAEL H MCKNIGHT | JUAN CARLOS FOUST | | | $390,000.00 | 138428 | |
| 2 | 08/25/2021 | QCD | Quit Claim Deed | TIMOTHY E YALEY | IMRI-LAEL H MCKNIGHT | | | | 137509 | |
| 3 | 05/30/2018 | SWD | Statutory Warranty Deed | GAIL M WOOD | IMRI LAEL H MC KNIGHT | | | $235,000.00 | 130335 | |
| 4 | 11/01/2000 | SWD | Statutory Warranty Deed | HULTIN, JOANN | WOOD, GAIL M | 0 | 0 | $86,500.00 | 90928 | 0 |
Payout Agreement
| No payout information available.. |