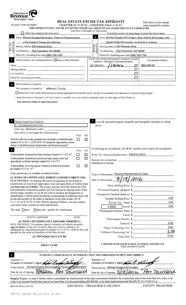
Property
Account |
| Property ID: | 44021 | Abbreviated Legal Description: | WOODLAND ACRES #1 LOT 11 |
| Parcel # / Geo ID: | 999501011 | Agent Code: | |
| Type: | Real | | |
| Tax Area: | 0211 - 1-49F1E1H2L1 | Land Use Code | 11 |
| Open Space: | N | DFL | N |
| Historic Property: | N | Remodel Property: | N |
| Multi-Family Redevelopment: | N | | |
| Township: | 29N | Section: | 2 |
| Range: | 1W |
Location |
| Address: | 231 W FITCHBURG AVE PORT HADLOCK, WA 98339 | Mapsco: | 144/070 |
| Neighborhood: | BISHOP ACRES; TAMARACK VILLAGE; WOODLAND ACRES | Map ID: | |
| Neighborhood CD: | 4214 |
Owner |
| Name: | FITCHBERG RESTORATION LLC | Owner ID: | 103703 |
| Mailing Address: | SYCAMORE STUDIO LLC ATTN ANDY POLITZ 231 W FITCHBERG AVE PORT HADLOCK, WA 98339-9590 | % Ownership: | 100.0000000000% |
| | | Exemptions: | |
Pay Tax Due
There is currently No Amount Due on this property.
Taxes and Assessment Details
Property Tax Information as of
10/24/2025
Click on "Statement Details" to expand or collapse a tax statement.
* Please enter a valid date ** Please enter a valid date *
Statement Details |
| | TOTAL: | $0.00 | $0.00 | $0.00 | $0.00 | $0.00 | $0.00 |
|
| | $0.00 | $0.00 | $0.00 | $0.00 | $0.00 | $0.00 |
Values
| (+) Improvement Homesite Value: | + | $276,676 | |
| (+) Improvement Non-Homesite Value: | + | $0 | |
| (+) Land Homesite Value: | + | $99,000 | |
| (+) Land Non-Homesite Value: | + | $0 | |
| (+) Curr Use (HS): | + | $0 | $0 |
| (+) Curr Use (NHS): | + | $0 | $0 |
| | | -------------------------- | |
| (=) Market Value: | = | $375,676 | |
| (–) Productivity Loss: | – | $0 | |
| | | -------------------------- | |
| (=) Subtotal: | = | $375,676 | |
| (+) Senior Appraised Value: | + | $0 | |
| (+) Non-Senior Appraised Value: | + | $375,676 | |
| | | -------------------------- | |
| (=) Total Appraised Value: | = | $375,676 | |
| (–) Senior Exemption Loss: | – | $0 | |
| (–) Exemption Loss: | – | $0 | |
| | | -------------------------- | |
| (=) Taxable Value: | = | $375,676 | |
Taxing Jurisdiction
| Owner: | FITCHBERG RESTORATION LLC | | |
| % Ownership: | 100.0000000000% | | |
| Total Value: | N/A | | |
| Tax Area: | 0211 - 1-49F1E1H2L1 |
| CE | COUNTY CURRENT EXPENSE | N/A | N/A | N/A | N/A | | |
| CNTYDD | DEVELOPMENTAL DISABILITIES | N/A | N/A | N/A | N/A | | |
| CNTYVET | VETERANS RELIEF | N/A | N/A | N/A | N/A | | |
| MENTAL | MENTAL HEALTH | N/A | N/A | N/A | N/A | | |
| ROADS | COUNTY ROADS | N/A | N/A | N/A | N/A | | |
| ROADSCU | COUNTY ROADS TO CUR EXP | N/A | N/A | N/A | N/A | | |
| HOSP2CASH | HOSP DIST #2 GENERAL | N/A | N/A | N/A | N/A | | |
| SCH49CP | SCHOOL DIST #49 CAP PROJ | N/A | N/A | N/A | N/A | | |
| SCH49MO | SCHOOL DIST #49 EP & O | N/A | N/A | N/A | N/A | | |
| CONSERVE | CONSERVATION FUTURES | N/A | N/A | N/A | N/A | | |
| EMS1 | FIRE DIST #1 EMS | N/A | N/A | N/A | N/A | | |
| FD1 | FIRE DIST #1 GENERAL | N/A | N/A | N/A | N/A | | |
| LIB1 | LIBRARY DIST #1 GENERAL | N/A | N/A | N/A | N/A | | |
| PORTPT | PORT OF PT GENERAL | N/A | N/A | N/A | N/A | | |
| PORTPTIDD | PORT OF PT IDD 2019 | N/A | N/A | N/A | N/A | | |
| PUD1 | PUD #1 GENERAL | N/A | N/A | N/A | N/A | | |
| STATE | STATE SCHOOL PART 1 | N/A | N/A | N/A | N/A | | |
| STATE2 | STATE SCHOOL PART 2 | N/A | N/A | N/A | N/A | | |
| | Total Tax Rate: | N/A | | | | | |
| | | | | Taxes w/Current Exemptions: | N/A | | |
| | | | | Taxes w/o Exemptions: | N/A | | |
Improvement / Building
| Improvement #1: | Residential Bldg | State Code: | 11 | 1252.0 sqft | Value: | $276,676 |
| Bathrooms (#): | 2 (FULL) | Bathrooms (#): | 1 (HALF) | | Bedrooms (#): | 3 | Exterior Wall: | SI/ST | | Fireplace: | DBL 2-FAIR | Floor Construction: | FRAME | | Foundation: | CONPR | Heating/Cooling: | F/A | | Inside Verify: | YES-FIX | Roof Cover: | SHAKE |
|
| | Type | Description | Class CD | Sub Class CD | Year Built | Area |
| | MA | Main Area | 3 | 1S | 1978 | 1252.0 |
| | HCPOR | House Concrete Porch | 3 | * | 1978 | 32.0 |
| | HDECK | House Deck | 3 | * | 1978 | 207.0 |
| | GBSMT | Basement Garage | 3 | 1S | 1978 | 624.0 |
| | BSMTF | House basement finished | 3 | * | 1978 | 576.0 |
Sketch
| No sketches available for this property. |
Property Image
Land
| 1 | 4214-1286S | Woodland Acres Lots | 0.0000 | 0.00 | 0.00 | 0.00 | 1.00 | $99,000 | $0 |
Roll Value History
| 2025 | N/A | N/A | N/A | N/A | N/A |
| 2024 | $264,647 | $94,500 | $0 | $359,147 | $359,147 |
| 2023 | $252,617 | $85,000 | $0 | $337,617 | $337,617 |
| 2022 | $199,020 | $80,000 | $0 | $279,020 | $279,020 |
| 2021 | $184,278 | $71,500 | $0 | $255,778 | $255,778 |
Deed and Sales History
| 1 | 11/06/2020 | SWD | Statutory Warranty Deed | ELEANOR ANNE GOVIA | FITCHBERG RESTORATION LLC | | | $250,153.00 | 135575 | |
| 2 | 10/11/2018 | PRD | Personal Representatives Deed | JERRY GOVIA JR | ELEANOR ANNE GOVIA | | | | 131182 | |
| 3 | 07/07/2005 | SWD | Statutory Warranty Deed | GOVIA, JERRY JR/ELEANOR | GOVIA, JERRY JR | | | $0.00 | 104127 | 0 |
Payout Agreement
| No payout information available.. |