Property
Account |
| Property ID: | 44128 | Abbreviated Legal Description: | WOODLAND HILLS #2 PHASE 1 DIV 2 LOT 34 SUBJ TO OPEN SPACE |
| Parcel # / Geo ID: | 999900134 | Agent Code: | |
| Type: | Real | | |
| Tax Area: | 0111 - 1-50F1E1H2L1 | Land Use Code | 11 |
| Open Space: | N | DFL | N |
| Historic Property: | N | Remodel Property: | N |
| Multi-Family Redevelopment: | N | | |
| Township: | 30N | Section: | 28 |
| Range: | 1W |
Location |
| Address: | 172 QUAIL RIDGE CT PORT TOWNSEND, WA 98368 | Mapsco: | 071/034 |
| Neighborhood: | WOODLAND HILLS, WALTHEWS ACRE, MISC LONG PLATS, MEYER SUBDIV | Map ID: | |
| Neighborhood CD: | 5387 |
Owner |
| Name: | WYMAN FAMILY REVOCABLE TRUST | Owner ID: | 111968 |
| Mailing Address: | EDWARD W & SHARI L WYMAN TRUSTEES 2455 JEFFERSON ST PORT TOWNSEND, WA 98368-4634 | % Ownership: | 100.0000000000% |
| | | Exemptions: | |
Pay Tax Due
There is currently No Amount Due on this property.
Taxes and Assessment Details
Property Tax Information as of
10/24/2025
Click on "Statement Details" to expand or collapse a tax statement.
* Please enter a valid date ** Please enter a valid date *
Statement Details |
| | TOTAL: | $0.00 | $0.00 | $0.00 | $0.00 | $0.00 | $0.00 |
|
| | $0.00 | $0.00 | $0.00 | $0.00 | $0.00 | $0.00 |
Values
| (+) Improvement Homesite Value: | + | $0 | |
| (+) Improvement Non-Homesite Value: | + | $1,080,504 | |
| (+) Land Homesite Value: | + | $0 | |
| (+) Land Non-Homesite Value: | + | $251,304 | |
| (+) Curr Use (HS): | + | $0 | $0 |
| (+) Curr Use (NHS): | + | $0 | $0 |
| | | -------------------------- | |
| (=) Market Value: | = | $1,331,808 | |
| (–) Productivity Loss: | – | $0 | |
| | | -------------------------- | |
| (=) Subtotal: | = | $1,331,808 | |
| (+) Senior Appraised Value: | + | $0 | |
| (+) Non-Senior Appraised Value: | + | $1,331,808 | |
| | | -------------------------- | |
| (=) Total Appraised Value: | = | $1,331,808 | |
| (–) Senior Exemption Loss: | – | $0 | |
| (–) Exemption Loss: | – | $0 | |
| | | -------------------------- | |
| (=) Taxable Value: | = | $1,331,808 | |
Taxing Jurisdiction
| Owner: | WYMAN FAMILY REVOCABLE TRUST | | |
| % Ownership: | 100.0000000000% | | |
| Total Value: | N/A | | |
| Tax Area: | 0111 - 1-50F1E1H2L1 |
| CE | COUNTY CURRENT EXPENSE | N/A | N/A | N/A | N/A | | |
| CNTYDD | DEVELOPMENTAL DISABILITIES | N/A | N/A | N/A | N/A | | |
| CNTYVET | VETERANS RELIEF | N/A | N/A | N/A | N/A | | |
| MENTAL | MENTAL HEALTH | N/A | N/A | N/A | N/A | | |
| ROADS | COUNTY ROADS | N/A | N/A | N/A | N/A | | |
| ROADSCU | COUNTY ROADS TO CUR EXP | N/A | N/A | N/A | N/A | | |
| HOSP2CASH | HOSP DIST #2 GENERAL | N/A | N/A | N/A | N/A | | |
| SCH50BOND | SCHOOL DIST #50 BOND 2016 | N/A | N/A | N/A | N/A | | |
| SCH50CP | SCHOOL DIST #50 CAP PROJ | N/A | N/A | N/A | N/A | | |
| SCH50MO | SCHOOL DIST #50 EP & O | N/A | N/A | N/A | N/A | | |
| CONSERVE | CONSERVATION FUTURES | N/A | N/A | N/A | N/A | | |
| EMS1 | FIRE DIST #1 EMS | N/A | N/A | N/A | N/A | | |
| FD1 | FIRE DIST #1 GENERAL | N/A | N/A | N/A | N/A | | |
| LIB1 | LIBRARY DIST #1 GENERAL | N/A | N/A | N/A | N/A | | |
| PORTPT | PORT OF PT GENERAL | N/A | N/A | N/A | N/A | | |
| PORTPTIDD | PORT OF PT IDD 2019 | N/A | N/A | N/A | N/A | | |
| PUD1 | PUD #1 GENERAL | N/A | N/A | N/A | N/A | | |
| STATE | STATE SCHOOL PART 1 | N/A | N/A | N/A | N/A | | |
| STATE2 | STATE SCHOOL PART 2 | N/A | N/A | N/A | N/A | | |
| | Total Tax Rate: | N/A | | | | | |
| | | | | Taxes w/Current Exemptions: | N/A | | |
| | | | | Taxes w/o Exemptions: | N/A | | |
Improvement / Building
| Improvement #1: | Residential Bldg | State Code: | 11 | 1240.0 sqft | Value: | $367,507 |
| Bathrooms (#): | 1 (FULL) | Bathrooms (#): | 1 (HALF) | | Bedrooms (#): | 1 | Exterior Wall: | SI/ST | | Floor Construction: | FRAME | Foundation: | CONPR | | Heating/Cooling: | F/A | Inside Verify: | YES | | Roof Cover: | COMP |   |   |
|
| | Type | Description | Class CD | Sub Class CD | Year Built | Area |
| | MA | Main Area | 4 | 2S | 2006 | 280.0 |
| | MA2 | Second Floor Main Area | 4 | 2S | 2006 | 960.0 |
| | HBAL | House Balcony | 4 | 2S | 2006 | 416.0 |
| | CARPTF | Carport W/Floor | 3 | 2S | 2006 | 672.0 |
| | GBLTIN | Builtin Garage | 3 | 2S | 2006 | 1352.0 |
| | SHED | Shed (Table Not Dep) | 4 | 2S | 2006 | 64.0 |
| | SOLAR | Solar Panel | 4 | 2S | 2006 | 0.0 |
| Improvement #2: | Residential Bldg | State Code: | 11 | 2496.0 sqft | Value: | $712,997 |
| Bathrooms (#): | 3 (FULL) | Bedrooms (#): | 3 | | Exterior Wall: | SI/ST | Fireplace: | PROPS-GOOD | | Floor Construction: | FRAME | Foundation: | CONPR | | Heating/Cooling: | HPUMP | Inside Verify: | YES | | Roof Cover: | COMP |   |   |
|
| | Type | Description | Class CD | Sub Class CD | Year Built | Area |
| | MA | Main Area | 4 | 15SF | 2016 | 1798.0 |
| | MA2 | Second Floor Main Area | 4 | 15SF | 2016 | 698.0 |
| | BSMTF | House basement finished | 4 | 15SF | 2016 | 1740.0 |
| | HDECK | House Deck | 4 | 15SF | 2016 | 534.0 |
| | HWPOR | House Wood Porch | 4 | 15SF | 2016 | 278.0 |
| | OTHER | Other | 4 | 15SF | 2016 | 0.0 |
Sketch
| No sketches available for this property. |
Property Image
Land
| 1 | 5387-1371S | Good Terr View Sites 1+/- Acre Pwr/Wtr | 1.0000 | 43560.00 | 0.00 | 0.00 | 1.00 | $204,600 | $0 |
| 2 | 1574A | Terr/Mtn/No View <6 Acres | 3.3300 | 145054.80 | 0.00 | 0.00 | 0.00 | $46,704 | $0 |
Roll Value History
| 2025 | N/A | N/A | N/A | N/A | N/A |
| 2024 | $1,033,525 | $251,304 | $0 | $1,284,829 | $1,284,829 |
| 2023 | $958,544 | $226,758 | $0 | $1,185,302 | $1,185,302 |
| 2022 | $871,403 | $200,965 | $0 | $1,072,368 | $1,072,368 |
| 2021 | $660,153 | $178,902 | $0 | $839,055 | $839,055 |
Deed and Sales History
| 1 | 12/09/2024 | QCD | Quit Claim Deed | EDWARD W WYMAN | WYMAN FAMILY REVOCABLE TRUST | | | | 143705 | |
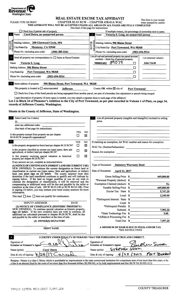
| 2 | 09/30/2003 | SWD | Statutory Warranty Deed | EAGLE EYE INC | WYMAN, EDWARD W/SHARI L | 0 | 0 | $79,500.00 | 98446 | 0 |
Payout Agreement
| No payout information available.. |